Prix
453 400€
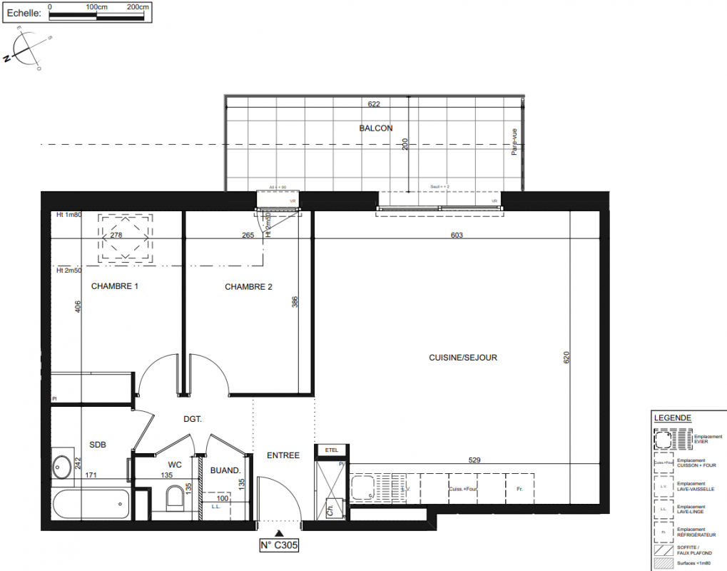
Type
Appt. au 2ème
Pièces
T3
Surface
71.83 m²
Exposition
-
Ville
Poisy (74330)
Livraison
2ème trimestre 2028
Informations
01 81 80 39 10

Présentation du programme "CELESTE"

FRAIS DE NOTAIRE OFFERTS *

Située chemin des Pacheux, la résidence bénéficie d'un environnement résidentiel privilégié, à proximité des commerces, des établissements scolaires et des transports permettant de rejoindre Annecy facilement.

La résidence propose 44 logements en accession, accompagnés de stationnements en sous-sol et de locaux vélos, répondant aux attentes des actifs et des familles en quête d'un cadre de vie équilibré.

Pensée en harmonie avec son environnement, la résidence s'inscrit dans un écrin paysager soigné, composé d'essences locales, d'espaces végétalisés et de cheminements doux. Un espace central convivial favorise les échanges entre résidents, dans une atmosphère apaisée et naturelle.
Le projet intègre une démarche environnementale avec des aménagements favorisant la biodiversité (nichoirs, hôtel à insectes), des sols perméables et des espaces partagés comme des zones de compostage et des carrés aromatiques.

Les appartements proposent des espaces lumineux, ouverts sur l'extérieur et orientés pour valoriser les vues sur les montagnes environnantes. Les prestations ont été sélectionnées avec exigence : grandes baies vitrées, matériaux durables et finitions soignées pour un confort au quotidien.
Les avantages du programme
Les + du programme :
•Environnement naturel et vues dégagées sur les montagnes
•Résidence paysagère favorisant la biodiversité
•Stationnements en sous-sol et locaux vélos
•Espaces extérieurs privatifs et coeur d'îlot aménagé
•Conception conforme à la réglementation RE2020

Au quotidien, profitez d'un cadre de vie pratique et dynamique :
•Commerces de proximité et marché local
•Écoles de la maternelle au lycée accessibles rapidement
•Équipements sportifs et culturels à proximité
•Bus reliant Annecy et pistes cyclables facilitant les déplacements
•Accès rapide au centre d'Annecy en voiture

Un cadre de vie rare entre nature, confort et proximité d'Annecy, idéal pour habiter durablement ou réaliser un premier achat.

Contactez-nous dès maintenant au 04 84 31 44 61 pour plus d'informations ou pour étudier votre projet immobilier.

Autres logements T3 du programme "CELESTE"

Disponibilité Prix Genre Pièces Surface Étage
Voir
Disponible
453 400€ Appt. T3 73.04m2 2ème
Voir
Disponible
452 400€ Appt. T3 65.47m2 1er
Voir
Disponible
439 400€ Appt. T3 66.92m2 2ème
DO NOT CLICK