Ce lot n’est plus disponible chez VIANOVA ou est vendu.
Vous pouvez revenir dans 24h pour vérifier le stock à jour ou contacter un conseiller Vianova pour vérifier le stock en direct.
Vous pouvez également continuer votre recherche sur notre site « ici ».
Prix
570 200€
570 200€
Type
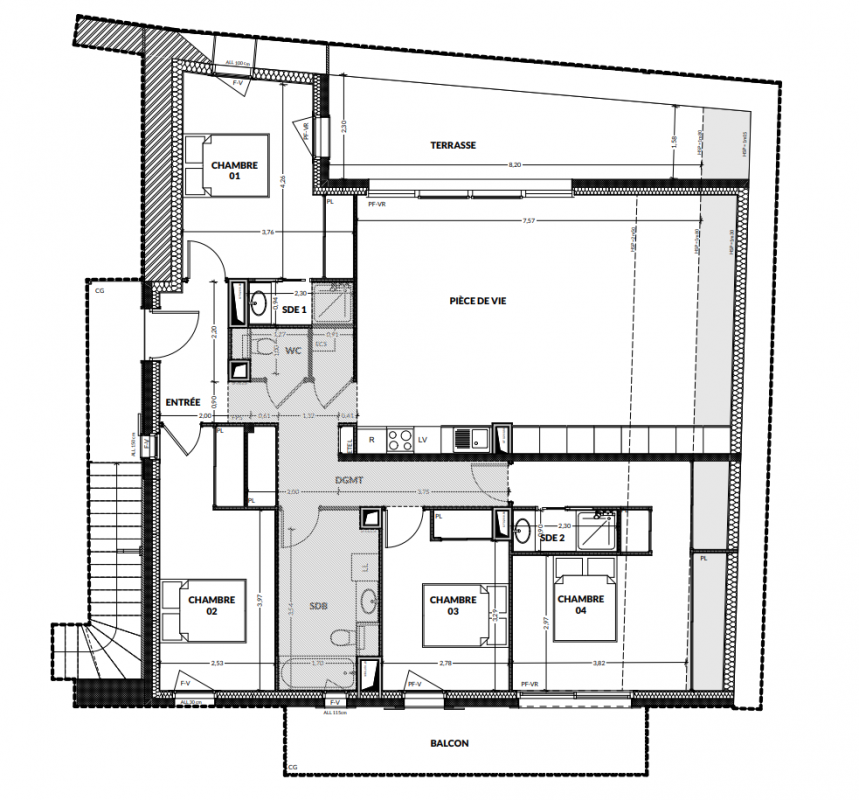
Appt. au 0-RDC
Appt. au 0-RDC
Pièces
T5
T5
Surface
126.5 m²
126.5 m²
Exposition
-
-
Ville
Saint-Paul-en-Chablais (74500)
Saint-Paul-en-Chablais (74500)
Livraison
3ème trimestre 2027
3ème trimestre 2027
Informations
01 81 80 39 10
01 81 80 39 10
Présentation du programme "Bellevue"
[NOUVEAU DISPOSITIF JEANBRUN : réduisez vos impôts et augmentez votre rentabilité !]
La résidence Bellevue à Saint-Paul-en-Chablais, composée d'appartements du studio au 5 pièces, dont un corps de ferme conservé et réhabilité, est idéalement située dans un cadre de vie idyllique et propose des vues dégagées sur les montagnes et le lac Léman. Une adresse à l'esprit campagne à proximité de la Suisse, des stations de ski et du lac Léman. Prestations soignées et espace extérieur (balcon, terrasse ou jardin privatif) pour tous les appartements. Terrain de pétanque, placette commune, verger collectif et jardin potager partagé favorisant la convivialité entre voisins.