Prix
360 000€
Type
Appt. au 1er
Pièces
T3
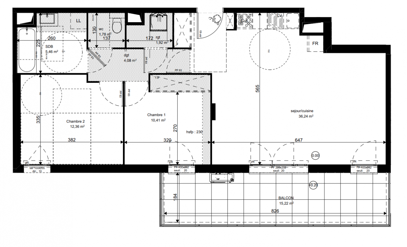
Surface
72.25 m²
Exposition
-
Ville
Lentilly (69210)
Livraison
3ème trimestre 2027
Informations
01 81 80 39 10

Présentation du programme "Les Terrasses de l’Ouest"

Un site privilégié avec des vues panoramiques
Saisissez l’opportunité de réaliser un placement à fort potentiel dans la commune montante de l’Ouest lyonnais. Depuis 5 ans, Lentilly affiche une croissance démographique exceptionnelle. Les raisons de son succès : un cadre de vie plein de charme, de nombreux commerces de proximité, un marché convivial, une vie associative riche et une offre complète d’équipements scolaires, culturels, sportifs et médicaux. Son développement se nourrit également de zones d’activités dynamiques avec plusieurs entreprises de plus de 100 salariés. Desservie par le tram-train, l’A89 et la RN7, la commune se place à seulement 30 min de Lyon.

Autres logements T3 du programme "Les Terrasses de l’Ouest"

Disponibilité Prix Genre Pièces Surface Étage
Voir
Disponible
320 000€ Appt. T3 69.54m2 0-RDC
Voir
Disponible
348 000€ Appt. T3 70.46m2 1er
DO NOT CLICK