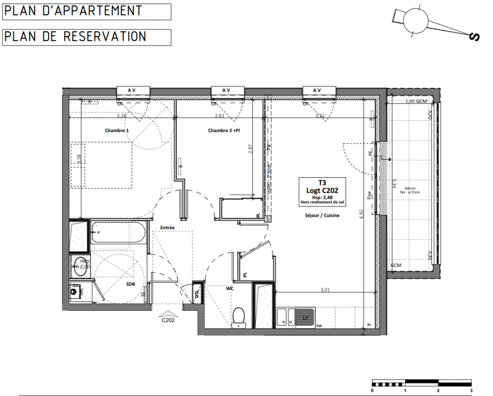
232 000€
Appt. au 2ème
T3
57.43 m²
-
Pont-Péan (35131)
2ème trimestre 2026
01 81 80 39 10
Présentation du programme "TERRA SERENA"
[ – LIVRAISON IMMÉDIATE // OFFRE EXCLUSIVE – ] Dernières opportunités 2 et 3 pièces au cœur de Pont-Péan, aux portes de Rennes.
Un coup de pouce concret pour emménager sans attendre : VOTRE CUISINE est OFFERTE !*
Un avantage immédiat pour finaliser votre logement et vous installer rapidement.
Visitez notre appartement décoré sur rendez-vous.
Installez-vous dans un cadre de vie privilégié, au cœur d’une commune conviviale et engagée, à deux pas du centre-bourg et de ses commerces. La résidence TERRA SERENA permet de profiter pleinement de cet environnement tout en restant connectée à la métropole rennaise grâce à sa proximité avec la rue de Nantes, alliant ainsi sérénité et praticité.
Découvrez les dernières opportunités du 2 au 3 pièces, toutes dotées d’un espace extérieur privatif (balcon, terrasse ou jardin). Les larges ouvertures et les belles expositions assurent une luminosité naturelle et un confort au quotidien.
Contactez nos conseillers Lamotte à Rennes ou rendez-vous sur Vianova.fr pour en savoir plus.
*Valable pour tous les Prêts à Taux Zéro (PTZ) émis à partir du 1er avril 2025 pour l’acquisition de sa résidence principale neuve en tant que primo-accédant. Le PTZ sera accessible dans toutes les communes du territoire français, quelle que soit leur zone A, B et C, pour les logements collectifs et individuels neufs. Sous réserve de respecter les modalités définies prochainement par décret et les conditions d’application du PTZ de la loi de finances pour 2025. Sous réserve d’acceptation du dossier par l’établissement bancaire.
Autres logements T3 du programme "TERRA SERENA"
| Disponibilité | Prix | No | Genre | Pièces | Surface | Étage | Disponibilité | Prix | ||
|---|---|---|---|---|---|---|---|---|---|---|
| Voir | Disponible | 245 000€ | C004 | Appt. | T3 | 63.37m2 | 0-RDC | Disponible | 245 000€ | Voir |
| Voir | Disponible | 249 000€ | C005 | Appt. | T3 | 66.04m2 | 0-RDC | Disponible | 249 000€ | Voir |
| Voir | Disponible | 235 000€ | C105 | Appt. | T3 | 63.37m2 | 1er | Disponible | 235 000€ | Voir |
| Voir | Disponible | 239 000€ | C205 | Appt. | T3 | 63.81m2 | 2ème | Disponible | 239 000€ | Voir |
| Voir | Optionné | 244 000€ | C206 | Appt. | T3 | 66.03m2 | 2ème | Optionné Mais pas encore vendu 😉 | 244 000€ | Voir |
| Voir | Disponible | 255 000€ | C301 | Appt. | T3 | 60.72m2 | 3ème | Disponible | 255 000€ | Voir |
| Voir | Disponible | 298 000€ | C303 | Appt. | T3 | 77.06m2 | 3ème | Disponible | 298 000€ | Voir |