370 000€
Maison au 0-RDC
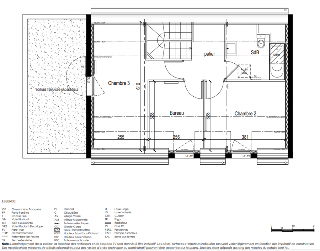
T4
86.92 m²
-
Erdeven (56410)
1er trimestre 2026
01 81 80 39 10
Présentation du programme "FLEUR OCEAN - MAISONS"
[ - LIVRAISON IMMINENTE - PORTES OUVERTES * - ] Rendez-vous le 3 et 4 avril au sein de notre MAISON DECORÉE !
Le PTZ 2025 s’étend désormais aux maisons ! C’est l’opportunité de devenir propriétaire grâce à ce dispositif avantageux. Ne manquez pas cette occasion unique de réaliser votre projet immobilier à Erdeven, au cœur de la baie de Quiberon, dans un environnement calme et privilégié.
Découvrez nos DERNIERES OPPORTUNITES, de maisons modernes et spacieuses de 4 pièces, dans un quartier recherché, à quelques pas des commerces, écoles et infrastructures sportives. Chaque maison dispose d’un garage privé et d’un stationnement extérieur, vous offrant un confort de vie au quotidien.
Les dernières opportunités sont à saisir : ces maisons de qualité, avec 3 chambres dont une suite parentale en rez-de-chaussée, sont conçues pour répondre à vos attentes en termes de praticité et confort. De plus, profitez de l’emplacement idéal à 10 minutes à vélo des plages de sable fin, pour un quotidien alliant nature et commodités.
Profitez de cette opportunité rare : grâce au PTZ 2025, vous pouvez financer votre maison neuve dans les meilleures conditions. Ces dernières maisons disponibles répondent à tous les critères pour un cadre de vie agréable et fonctionnel, que ce soit pour une installation familiale ou une retraite paisible.
Contactez nos conseillers LAMOTTE à VANNES pour davantage de renseignements !
Autres logements T4 du programme "FLEUR OCEAN - MAISONS"
| Disponibilité | Prix | No | Genre | Pièces | Surface | Étage | Disponibilité | Prix | ||
|---|---|---|---|---|---|---|---|---|---|---|
| Voir | Disponible | 423 000€ | M01 | Maison | T4 | 92.65m2 | 0-RDC | Disponible | 423 000€ | Voir |
| Voir | Disponible | 419 000€ | M04 | Maison | T4 | 86.92m2 | 0-RDC | Disponible | 419 000€ | Voir |
| Voir | Disponible | 409 000€ | M06 | Maison | T4 | 88.86m2 | 0-RDC | Disponible | 409 000€ | Voir |


