470 000€
Appt. au 0-RDC
-
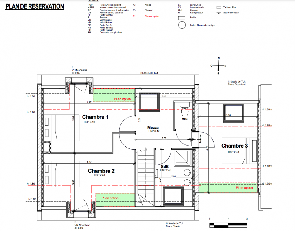
91.35 m²
Nord
Le Palais (56360)
3ème trimestre 2026
01 81 80 39 10
Présentation du programme "Les Belliloises"
Inédit ! Les Belliloises, BELLE-ILE - LE PALAIS (56360)
Belle-Île est pour beaucoup la perle du Morbihan. Vivante toute l’année, Belle-Île dispose des équipements, services et commerces indispensables à la qualité de vie de ses habitants au quotidien. Tout à la fois destination touristique et lieu de villégiature, l’île séduit les nouveaux arrivants conquis par l’ambiance et la beauté des paysages. Eux ont choisi d’y vivre à demeure.
50 minutes en bateau vous séparent de Quiberon. Cet isolement relatif préserve la beauté de l’île et lui évite le tourisme de masse. Au bout de la traversée, le dépaysement est total. Sur 17 km de long et 8 de large, une cinquantaine de plages, alternent avec des petites criques sauvages. Belle-Île se vit en toute saison à pied, à vélo, ou à cheval et finalement peu en voiture.
Un havre de paix proche de la mer
Idéalement situé au Palais, le point d’entrée sur l’île, légèrement en retrait pour être au calme, loin de l’affluence touristique, à proximité des commerces, des services et des plages, le domaine Les Belliloises est le port d’attache par excellence à Belle-Île.
Votre maison neuve de 4 ou 6 pièces à Belle-Ile
Nichées au sein d’une résidence aux allures de hameau breton, Les Belliloises composent un cadre de vie apaisant où la nature prend ses aises. Cet univers bercé par les embruns et le soleil est largement végétalisé et les maisons ont des allures de penty. Chacune d’entre elles affiche les codes architecturaux typiques de la Bretagne remis au goût du jour : un toit à double pente habillé d’ardoises, des chiens assis au premier étage, des façades d’une blancheur éblouissante. Traditions et modernité cohabitent avec élégance. Les ouvertures généreuses éclairent des espaces à vivre spacieux. La grande pièce principale, cœur de votre maison, bénéficie d’une double exposition. La qualité des prestations apporte le confort d’un habitat bien dans l’air du temps, respectueux de l’environnement et de votre qualité de vie. Un jardin engazonné, avec une belle terrasse, un garage même si votre voiture en sortira peu, complètent le tableau
Les prestations de votre future maison sont particulièrement soignées car votre confort et votre bien-être sont au cœur de nos préoccupations.
Les Belliloises est un programme immobilier LELIEVRE Immobilier. Il est porté par le promoteur immobilier nantais Atréalis Promotion, filiale du Groupe LELIEVRE depuis 2019.
Autres logements - du programme "Les Belliloises"
| Disponibilité | Prix | No | Genre | Pièces | Surface | Étage | Disponibilité | Prix | ||
|---|---|---|---|---|---|---|---|---|---|---|
| Voir | Disponible | 490 000€ | 19 | Appt. | - | 91.38m2 | 0-RDC | Disponible | 490 000€ | Voir |
| Voir | Disponible | 560 000€ | 22 | Appt. | - | 91.35m2 | 0-RDC | Disponible | 560 000€ | Voir |
| Voir | Disponible | 490 000€ | 23 | Appt. | - | 86.15m2 | 0-RDC | Disponible | 490 000€ | Voir |
| Voir | Disponible | 575 000€ | 18 | Appt. | - | 101.96m2 | 0-RDC | Disponible | 575 000€ | Voir |
| Voir | Disponible | 555 000€ | 20 | Appt. | - | 91.35m2 Le bon plan | 0-RDC | Disponible | 555 000€ | Voir |
| Voir | Disponible | 570 000€ | 16 | Appt. | - | 91.34m2 | 0-RDC | Disponible | 570 000€ | Voir |
| Voir | Disponible | 699 000€ | 15 | Appt. | - | 127.9m2 | 0-RDC | Disponible | 699 000€ | Voir |
| Voir | Disponible | 460 000€ | 30 | Appt. | - | 87.48m2 | 0-RDC | Disponible | 460 000€ | Voir |
| Voir | Disponible | 630 000€ | 28 | Appt. | - | 110.95m2 | 0-RDC | Disponible | 630 000€ | Voir |
| Voir | Disponible | 575 000€ | 29 | Appt. | - | 102.13m2 | 0-RDC | Disponible | 575 000€ | Voir |
| Voir | Disponible | 565 000€ | 13 | Appt. | - | 91.34m2 | 0-RDC | Disponible | 565 000€ | Voir |
| Voir | Disponible | 655 000€ | 27 | Appt. | - | 113.78m2 | 0-RDC | Disponible | 655 000€ | Voir |
| Voir | Disponible | 555 000€ | 24 | Appt. | - | 91.38m2 | 0-RDC | Disponible | 555 000€ | Voir |
| Voir | Disponible | 530 000€ | 26 | Appt. | - | 91.38m2 | 0-RDC | Disponible | 530 000€ | Voir |
| Voir | Disponible | 535 000€ | 25 | Appt. | - | 91.34m2 | 0-RDC | Disponible | 535 000€ | Voir |

