Prix
176 000€
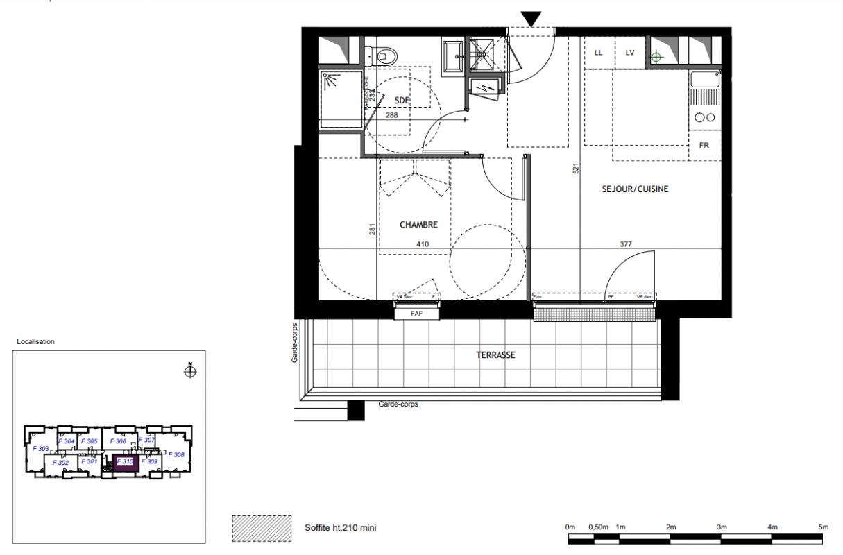
Type
Appt. au 3ème
Pièces
T2
Surface
38.8 m²
Exposition
Sud
Ville
Saran (45770)
Livraison
4ème trimestre 2024
Informations
01 81 80 39 10

Présentation du programme "ORGANDI"

A la fois, lieu de vie, de travail, de rencontres et de partage, le quartier QUELLE (re)prendra vie autour d’un bâtiment central de 40 000m². Surnommé « le paquebot », ce symbole du passé industriel du site sera conservé et réhabilité pour devenir le centre animé du futur quartier. Il abritera en effet des commerces, des locaux d’activités, des bureaux, une crèche, un centre médical, un hôtel ou encore des logements. Il servira également de lieu de stationnement pour l’ensemble des habitants et usagers du quartier.

Autres logements T2 du programme "ORGANDI"

Disponibilité Prix Genre Pièces Surface Étage
Voir
Disponible
172 000€ Appt. T2 42.48m2 0-RDC
DO NOT CLICK