Le programme immobilier neuf "Villa Printemps" situé dans la région Corse (Haute-Corse) vous offre 8 appartements neufs de type 2 pièces (T2) à partir de 248 442 €, 3 pièces (T3) à partir de 358 228 €, 4 pièces (T4) à partir de 514 552 €.
Il y a actuellement 8 logements neufs disponibles dans cette résidence neuve située à Calvi.
La livraison est prévue au 3ème trimestre 2027.
Les dispositifs fiscaux applicables sur ce programme sont : Accession, LMNP.
Description
A moins de 300 mètres de la baie de Calvi, "Villa Printemps" profite d'une situation exceptionnelle où la pinède, la mer, la montagne et la majestueuse citadelle de Calvi constituent le décor quotidien.
Son architecture élégante offre un design harmonieux et respectueux de l'environnement, les matériaux naturels et les lignes épurées s'intègrent parfaitement dans le paysage corse, créant une atmosphère à la fois authentique et raffinée.
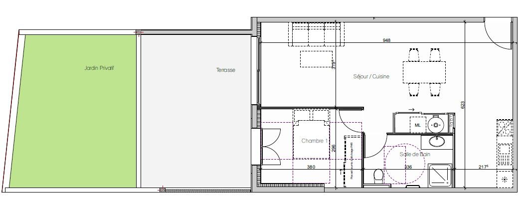
Composée de deux bâtiments du R+2 au R+3, la résidence propose 56 appartements du T1 au T4, chacun prolongé par une vaste terrasse.
Certains appartements pourront également bénéficier de beaux jardins.
Ces espaces de vie généreux et lumineux s'ouvrent sur un environnement où la mer et la montagne invitent chaque jour à la contemplation.
À seulement moins de 300 mètres de la plage, "Villa Printemps" permet de profiter pleinement des plaisirs de la mer Méditerranée.
Son jardin paysagé et la pinède environnante, classée en espace boisé, constituent un véritable havre de tranquillité et de nature préservée, idéal pour se ressourcer après des journées baignées de soleil.
Des prestations de qualité :
- Sous bassement façades parement pierre
- Murs en bardage bois
- Chauffe eau Thermodynamique
- Douche à bac extra plat
- WC suspendus
- Chauffage : pompes à chaleur individuelles
- Volets roulants électriques
- Sols carrelages 60x60
- Ascenseur
Logements neufs disponibles
| Disponibilité | Prix | No | Genre | Pièces | Surface | Étage | Disponibilité | Prix | ||
|---|---|---|---|---|---|---|---|---|---|---|
| Voir | Disponible | 248 442€ | A204 | Appt. | T2 | 43.23m2 | 0-RDC | Disponible | 248 442€ | Voir |
| Voir | Disponible | 264 577€ | A101 | Appt. | T2 | 47.09m2 | 0-RDC | Disponible | 264 577€ | Voir |
| Voir | Disponible | 313 125€ | A006 | Appt. | T2 | 56.25m2 | 0-RDC | Disponible | 313 125€ | Voir |
| Voir | Disponible | 307 500€ | A106 | Appt. | T2 | 56.25m2 | 0-RDC | Disponible | 307 500€ | Voir |
| Voir | Disponible | 358 228€ | B109 | Appt. | T3 | 65.62m2 | 0-RDC | Disponible | 358 228€ | Voir |
| Voir | Disponible | 462 238€ | A208 | Appt. | T3 | 82.31m2 | 0-RDC | Disponible | 462 238€ | Voir |
| Voir | Disponible | 478 432€ | A308 | Appt. | T3 | 82.31m2 | 0-RDC | Disponible | 478 432€ | Voir |
| Voir | Disponible | 514 552€ | B112 | Appt. | T4 | 87.59m2 | 0-RDC | Disponible | 514 552€ | Voir |





