Prix
418 200€
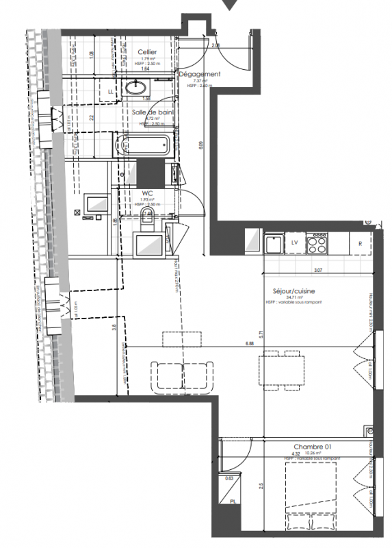
418 200€
Type
Appt. au 5ème
Appt. au 5ème
Pièces
T2
T2
Surface
60.12 m²
60.12 m²
Exposition
Sud-Est
Sud-Est
Ville
Troyes (10000)
Troyes (10000)
Livraison
3ème trimestre 2026
3ème trimestre 2026
Informations
01 81 80 39 10
01 81 80 39 10
Présentation du programme "Les Magasins Reunis"
Ce programme comprend 74 duplex et appartements neufs. Ils sont de type T1, T1 bis, T2, T3, T3 bis, T4, T4 bis et T5 et peuvent faire office d'investissement locatif. Leur livraison est annoncée à la fin de l'année 2026 et ils sont éligibles au dispositif Malraux.
Autres logements T2 du programme "Les Magasins Reunis"
| Disponibilité | Prix | No | Genre | Pièces | Surface | Étage | Disponibilité | Prix | ||
|---|---|---|---|---|---|---|---|---|---|---|
| Voir | Disponible | 368 200€ | A306 | Appt. | T2 | 59.91m2 | 3ème | Disponible | 368 200€ | Voir |
| Voir | Disponible | 395 700€ | A417 | Appt. | T2 | 57.86m2 | 4ème | Disponible | 395 700€ | Voir |
| Voir | Disponible | 375 700€ | A503 | Appt. | T2 | 57.2m2 | 5ème | Disponible | 375 700€ | Voir |
| Voir | Disponible | 415 600€ | C001 | Appt. | T2 | 66.67m2 | 0-RDC | Disponible | 415 600€ | Voir |