Prix
209 500€
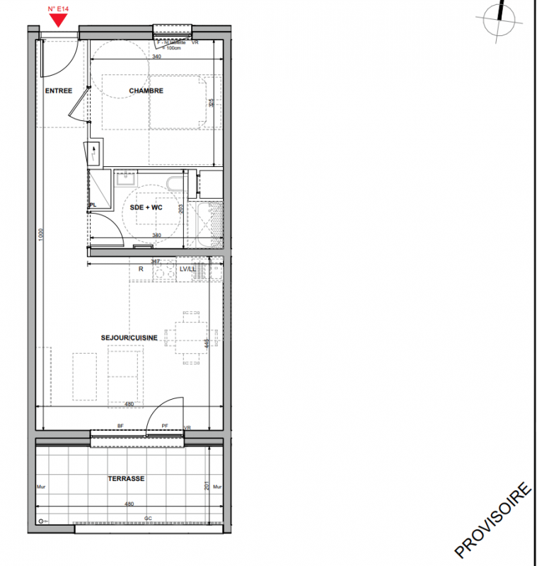
Type
Appt. au 1er
Pièces
T2
Surface
45.68 m²
Exposition
Sud
Ville
Haguenau (67500)
Livraison
2ème trimestre 2026
Informations
01 81 80 39 10

Présentation du programme "HIKARI"


LIVRAISON PROCHE – DERNIÈRES OPPORTUNITÉS À SAISIR ! FRAIS DE NOTAIRE OFFERTS* + VISITEZ NOTRE APPARTEMENT DÉCORÉ
Découvrez les derniers appartements disponibles au sein de HIKARI, une résidence neuve idéalement située à Haguenau, dans le quartier Nicolas Thurot, entre ville et nature.
Encore quelques logements disponibles :
PLUS QUE 2 DISPONIBLES : Appartement 2 pièces d'environ 45 m² avec loggia privative jusqu'à 9 m²3 pièces de 63 à 70 m² avec extérieur pour tous les appartements4 pièces de 70 à 94 m², tous orientés plein sud avec balcon, loggia ou jardin
Pensés pour le confort du quotidien, les appartements offrent de beaux espaces de vie lumineux, des extérieurs généreuxet un environnement calme tout en restant proches des commerces, services et grands axes.
Primo-accédants : profitez du Prêt à Taux Zéro (PTZ)* pour faciliter l’achat de votre résidence principale. Investisseurs : la résidence est éligible au dispositif locatif JEANBRUN, idéal pour développer votre patrimoine et préparer l’avenir.

HIKARI vous offre un cadre de vie moderne, verdoyant et connecté, à seulement quelques minutes du centre de Haguenau.

Autres logements T2 du programme "HIKARI"

Disponibilité Prix Genre Pièces Surface Étage
Voir
Disponible
209 500€ Appt. T2 44.57m2 1er
DO NOT CLICK