Prix
213 725€  (TVA 20%)
187 900€  (TVA 5.5%)
Type
Appt. au 2ème
Pièces
T2
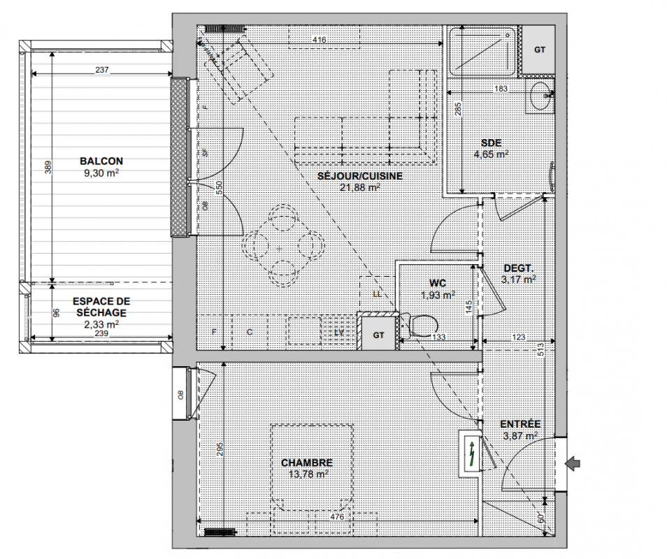
Surface
49.74 m²
Exposition
-
Ville
Strasbourg (67000)
Livraison
1er trimestre 2027
Informations
01 81 80 39 10

Présentation du programme "LE WOOD"

Découvrez cette nouvelle résidence située dans le quartier du Neuhof en plein renouveau qui est engagé dans une dynamique de renouvellement urbain depuis plusieurs années. Le projet comportera 3 petits bâtiments et agrémenté de deux commerces. Il se constitue d'appartements lumineux, traversants et bénéficiant de grands et larges balcons. Des panneaux solaires alimenteront les besoins en électricité de la copropriété ainsi que de la pompe à chaleur. Ces atouts amélioreront votre quotidien de façon permanente et feront en baisser vos charges. Des garages en sous-sol ainsi que des locaux vélos au rez-de-chaussée sauront garantir une sérénité pour vos stationnements. La résidence est proche de toutes les commodités nécessaires. Pour des déplacements en transports en commun, l'arrêt de tram Saint-Christophe (Ligne C) est à proximité immédiate de la résidence. Pour des activités culturelles et sportives, vous trouverez des établissements pour vous divertir comme la piscine de la Kibitzenau et le stade de la Meinau. Afin d'en savoir plus, contactez-nous dès maintenant au 0379331010 ! Votre conseiller commercial saura vous conforter et vous guider dans votre choix. PTZ zone A, RE 2020. Prix hors parking avec remise incluse.

Autres logements T2 du programme "LE WOOD"

Disponibilité Prix Genre Pièces Surface Étage
Voir
Optionné
227 488€ Appt. T2 55.95m2 3ème
Voir
Optionné
204 171€ Appt. T2 43.08m2 2ème
DO NOT CLICK