Prix
203 900€
Type
Appt. au 3ème
Pièces
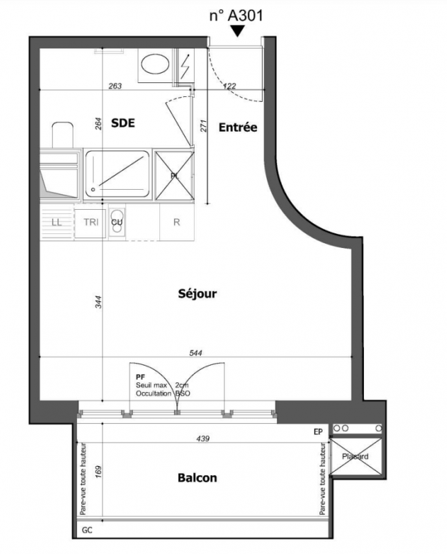
Studio
Surface
27.37 m²
Exposition
Sud
Ville
Strasbourg (67000)
Livraison
2ème trimestre 2027
Informations
01 81 80 39 10

Présentation du programme "Programme neuf Strasbourg (67000)"

DEMARRAGE DES TRAVAUX A STRASBOURG Devenez propriétaire de votre résidence principale à Strasbourg en bénéficiant de tous les avantages d'un logement neuf ! Ou investissez dans l'immobilier neuf avec le dispositif LLI et profitez de nombreux avantages ! Venez découvrir votre nouvelle adresse s'inscrivant dans le principal projet urbain de Strasbourg entre le centre-ville et le Rhin. Située dans le quartier Starlette, à proximité immédiate de la station de tramway Starcoop, notre résidence haut de gamme se distingue par un concept architectural singulier et l'adoption de matériaux nobles, briques, bois et aluminium.Du studio aux 5 pièces, les appartements traversants pour la plupart profitent de vues d'exception sur le bassin Vauban, Strasbourg-centre et le futur parc du Petit-Rhin de plus de 5 ha. Idéalement orientées, de grandes terrasses privatives s'ouvrent au 6e étage. Au rez-de-chaussée, un local accueille votre vélo, des celliers et des caves sont également à votre disposition. Les prestations intérieures sont à la hauteur de votre nouveau lieu de vie.

Autres logements Studio du programme "Programme neuf Strasbourg (67000)"

Pas de logements disponibles
DO NOT CLICK