Prix
503 900€
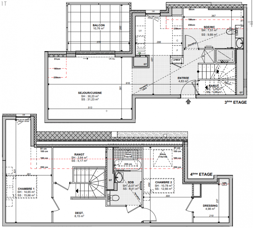
Type
Appt. au 3ème
Pièces
-
Surface
90.1 m²
Exposition
-
Ville
Strasbourg (67000)
Livraison
2ème trimestre 2025
Informations
01 81 80 39 10

Présentation du programme "TIVOLI 48"

Des appartements neufs et un local commercial à vendre. Une résidence d'exception, au fil de l'eau, dans un quartier très prisé ! Entre Vosges et Forêt-Noire, sur les rives du Rhin, la commune de Strasbourg s'inscrit dans un écrin paysager. En son coeur, la capitale européenne révèle toute son énergie : nature, effervescente et attractive. L'Eurométropole de Strasbourg est aujourd'hui parmi les plus dynamiques d'Europe : technologies médicales, mobilité innovante, tertiaire supérieur, économie sociale et solidaire, autant de secteurs tournés vers le futur. A l'entrée de Strasbourg et du quartier européen, la résidence vous réserve une architecture élégante et contemporaine, dans un cadre verdoyant. Les 31 appartements, du 2 au 5 pièces, bénéficient de vues sur la rivière l'Aar et les espaces paysagers, de jardins privatifs, et de prestations de haut standing. Une adresse de prestige, au coeur de l'un des quartiers les plus prisés de Strasbourg, le Tivoli.

Autres logements - du programme "TIVOLI 48"

Disponibilité Prix Genre Pièces Surface Étage
Voir
Disponible
928 900€ Appt. - 121.89m2 0-RDC
Voir
Disponible
599 900€ Appt. - 83.71m2 0-RDC
DO NOT CLICK