101 900€
Appt. au 2ème
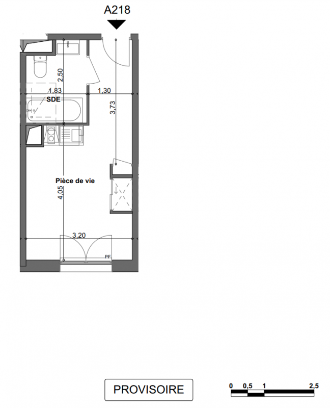
Studio
19.78 m²
Est
Valenciennes (59300)
3ème trimestre 2027
01 81 80 39 10
Présentation du programme "Programme neuf Valenciennes (59300)"
Investissez dans une nouvelle résidence étudiante à Valenciennes et profitez d’un rendement locatif jusqu’à 6,5%* par an !La ville abrite notamment Rubika, l'une des meilleures facultés de Design produit de France, située à seulement 5 min en vélo, ou à 16 min en tramway dont l’arrêt se situe à seulement 5 min. à pied. Toutes proches, les universités de Polytechnique des Hauts-de-France, l’IUT ainsi que le centre Hospitalier de Valenciennes viennent conforter le besoin de nombreux jeunes actifs et d'étudiants à la recherche de logements.La proximité avec Valenciennes, accessible en seulement 6 min en voiture, ainsi que la gare TGV reliant Lille Flandres, Douai et Paris Nord, constitue un atout majeur. La commune est également très bien desservie par les nombreux bus et tramway, qui parcourent l'ensemble de la ville et offrent un accès facile à notre résidence.Contactez-vite un de nos conseillers pour bénéficier de notre offre exclusive et découvrir tous nos logements neufs à Valenciennes !
Autres logements Studio du programme "Programme neuf Valenciennes (59300)"
| Disponibilité | Prix | No | Genre | Pièces | Surface | Étage | Disponibilité | Prix | ||
|---|---|---|---|---|---|---|---|---|---|---|
| Voir | Disponible | 101 900€ | A214 | Appt. | Studio | 19.78m2 | 2ème | Disponible | 101 900€ | Voir |
| Voir | Disponible | 102 000€ | B011 | Appt. | Studio | 19.78m2 | 0-RDC | Disponible | 102 000€ | Voir |
| Voir | Disponible | 103 000€ | B106 | Appt. | Studio | 19.91m2 | 1er | Disponible | 103 000€ | Voir |