Prix
360 000€
Type
Appt. au 2ème
Pièces
T3
Surface
67.8 m²
Exposition
Sud-Est
Ville
Arras (62000)
Livraison
2ème trimestre 2023
Informations
01 81 80 39 10

Présentation du programme " CONFIDEN'CIEL "

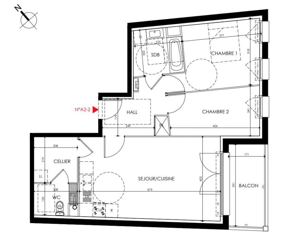
Dernier appartement neuf disponible immédiatement dans le centre-ville d'Arras - Appartement meublé et décoré à venir visiter !Adresse : 6 rue aux Ours - Arras.Appartement 3 pièces de 67.8 m² au 2ème étage comprenant : 

Séjour - cuisine de plus de 29 m² 
2 chambres de plus de 9 et 12 m² (dont 1 avec placard)
1 salle de bains entièrement équipée (baignoire, meuble vasque, sèche-serviette)
1 WC séparé 
1 grand cellier idéal pour le rangement (4.70m²)
2 places de stationnement
1 balcon de 6.7 m² exposé sud-est

Possibilité d'acquérir une place de parking en supplément.Les appartements sont disponibles immédiatement. Pour programmer votre visite, téléphonez-nous au 0 809 409 410.

Autres logements T3 du programme " CONFIDEN'CIEL "

Pas de logements disponibles
DO NOT CLICK