Prix
167 000€
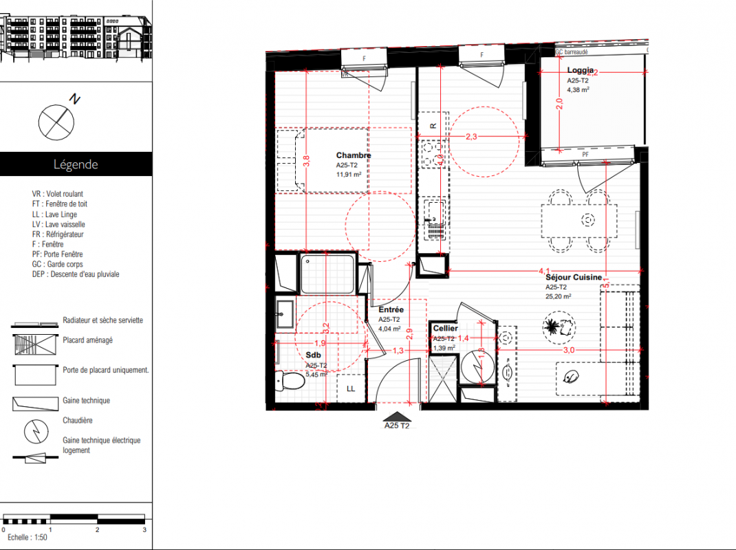
Type
Appt. au 2ème
Pièces
T2
Surface
49.94 m²
Exposition
Nord-Ouest
Ville
Saint-Omer (62500)
Livraison
3ème trimestre 2027
Informations
01 81 80 39 10

Présentation du programme "6ème Art"

Accéder à la maquette 3D de 6ème ArtSitué à quelques pas du centre historique, le 6ème Art mêle avec soin tradition des matériaux et modernité des façades.Les 26 logements, du 2 au 4 pièces, s'étendent avec des espaces extérieurs.Emplacement stratégique au cœur de Saint-Omer, avec accès facilité aux commodités locales et points d'intérêt de la ville. Ici, tout se fait à pied.Architecture élégante, typique de la communeExtérieurs et place de stationnement pour chaque logementProduit rare : Seul programme immobilier neuf à Saint-Omer, après notre opération Résidence du Théâtre.Confort quotidien d'une résidence moderne aux dernières normes et réglementationsREVÊTEMENTS DE SOL Parquet stratifié dans les pièces de vie (entrée, séjour, chambre)Carrelage 45x45 cm pour les pièces humides (salle de bains, WC) MENUISERIES EXTÉRIEURESFenêtres et portes-fenêtres à 1 ou 2 vantaux, ouvrants à la françaiseVolets roulants en PVC CHAUFFAGEChaudières individuelles à condensation à gaz produisant de l'eau chaude sanitaire et assurant le chauffageNORMES RE2020, favorisant une meilleure efficacité énergétiqueACCÈS SÉCURISÉVidéophone et visiophoneACCESSIBILITÉ AscenseurCommerces et services de la Place Foch et de la rue de Dunkerque à 100 mètres : restaurants, pharmacies, poste...Arrêt de bus à proximitéEN VOITUREHazebrouck en 35 min*Dunkerque en 45 min*Lille en 1 h*Arras en 1 h*EN TRAINLille en 1 h*Paris en 3 h**Source : Google Maps

Autres logements T2 du programme "6ème Art"

Pas de logements disponibles
DO NOT CLICK