Prix
226 000€
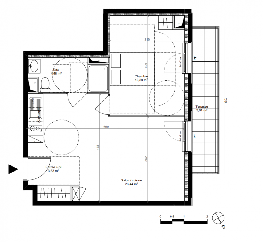
Type
Appt. au 0-RDC
Pièces
T2
Surface
45.04 m²
Exposition
-
Ville
Arpajon (91290)
Livraison
1er trimestre 2026
Informations
01 81 80 39 10

Présentation du programme "BELVEDERE"

[ - LANCEMENT - ] À moins de 30 minutes au sud de Paris, bienvenue à ARPAJON (91), au cœur de l’écoquartier LES BELLES VUES. La résidence Belvédère propose des appartements ou maisons appart’ du studio au 5 pièces. Neuf maisons de 4 et 5 pièces en duplex ou triplex avec jardins privatifs sont aussi intégrées au projet. Les logements bénéficient d’une conception durable et engagée : label NF Habitat HQE, label E+C-. Les aménagements intérieurs sont adaptables, réversibles et appropriables permettant d’offrir à toutes les générations les possibilités de faire varier les manières d’habiter. La résidence est un lieu idéal pour vivre ou investir ! Pour votre confort de vie au quotidien, Belvédère bénéficie d’une très bonne accessibilité sans oublier un cadre de vie privilégié. Commerces, loisirs, espaces verts, établissements scolaires… constituent l’identité d’un quartier de vie exemplaire ! À terme, activités et entreprises viendront s’installer à sa périphérie, rapprochant ainsi l’emploi des lieux de vie.

Autres logements T2 du programme "BELVEDERE"

Disponibilité Prix Genre Pièces Surface Étage
Voir
Optionné
219 000€ Appt. T2 43.01m2 1er
Voir
Disponible
230 000€ Appt. T2 42.76m2 0-RDC
DO NOT CLICK