250 362€ (TVA 20%)
220 110€ (TVA 5.5%)
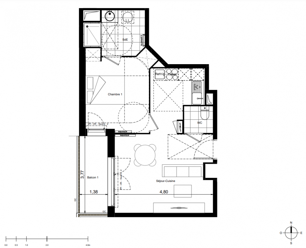
Appt. au 4ème
T2
44.7 m²
-
Brunoy (91800)
1er trimestre 2028
01 81 80 39 10
Présentation du programme "Programme neuf Brunoy (91800)"
Idéalement située, la ville de Brunoy dispose d'infrastructures essentielles au quotidien (établissements médicaux, équipements sportifs, théâtre, médiathèque et espaces culturels), ainsi que des établissements scolaires de la maternelle au lycée. Son accessibilité est assurée par la ligne D du RER, un réseau de bus dense, ainsi qu'un accès rapide à l'A6 et à la N104. Programme neuf Brunoy (91800) dispose notamment d'un arrêt de bus à moins de 200 m, permettant de rejoindre la gare RER D de Brunoy en 10 minutes.
Répartis sur 2 bâtiments à taille humaine, la résidence dispose de 66 logements, du studio au 4 pièces, chacun offrant des aménagements optimisés qui maximisent la luminosité et la sensation d'espace. Tous les appartements disposent d'un espace extérieur privatif (balcon, terrasse ou jardin), offrant pour les derniers étages des vues dégagées sur la vallée de l'Yerres. Côté route de Brie, l'alignement de chênes remarquables vient renforcer la tranquillité des habitants et s'intègre parfaitement au jardin fleuri et arboré en coeur d'îlot qui vient agrémenter l'intimité et le confort du lieu.
La résidence propose une architecture moderne élégante et s'intègre harmonieusement avec la partie habitation pavillonnaire de la route de Brie, avec l'usage du bois et de teintes naturelles et des lignes en adéquation avec l'architecture environnante.
Autres logements T2 du programme "Programme neuf Brunoy (91800)"
| Disponibilité | Prix | No | Genre | Pièces | Surface | Étage | Disponibilité | Prix | ||
|---|---|---|---|---|---|---|---|---|---|---|
| Voir | Disponible | 226 476€ | 2305 | Appt. | T2 | 41.65m2 | 3ème | Disponible | 226 476€ | Voir |
| Voir | Disponible | 224 160€ | 2004 | Appt. | T2 | 42.7m2 | 0-RDC | Disponible | 224 160€ | Voir |
| Voir | Disponible | 223 080€ | 2204 | Appt. | T2 | 42.7m2 | 2ème | Disponible | 223 080€ | Voir |
| Voir | Disponible | 238 980€ | 2108 | Appt. | T2 | 45m2 | 1er | Disponible | 238 980€ | Voir |
| Voir | Disponible | 242 400€ | 2208 | Appt. | T2 | 45m2 | 2ème | Disponible | 242 400€ | Voir |
| Voir | Disponible | 245 820€ | 2308 | Appt. | T2 | 45m2 | 3ème | Disponible | 245 820€ | Voir |
| Voir | Disponible | 229 807€ | 1106 | Appt. | T2 | 45.7m2 | 1er | Disponible | 229 807€ | Voir |
| Voir | Disponible | 233 047€ | 1206 | Appt. | T2 | 45.7m2 | 2ème | Disponible | 233 047€ | Voir |
| Voir | Disponible | 234 420€ | 1306 | Appt. | T2 | 45.7m2 | 3ème | Disponible | 234 420€ | Voir |
| Voir | Disponible | 230 803€ | 1201 | Appt. | T2 | 46.1m2 | 2ème | Disponible | 230 803€ | Voir |
| Voir | Disponible | 234 247€ | 1301 | Appt. | T2 | 46.1m2 | 3ème | Disponible | 234 247€ | Voir |
| Voir | Optionné | 214 977€ | 2302 | Appt. | T2 | 39.2m2 | 3ème | Optionné Mais pas encore vendu 😉 | 214 977€ | Voir |
| Voir | Disponible | 230 901€ | 2301 | Appt. | T2 | 43.85m2 | 3ème | Disponible | 230 901€ | Voir |
| Voir | Disponible | 234 313€ | 2309 | Appt. | T2 | 43.8m2 | 1er | Disponible | 234 313€ | Voir |