Prix
Type
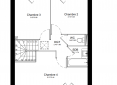
Maison au 0-RDC
Maison au 0-RDC
Pièces
T5
T5
Surface
91.01 m²
91.01 m²
Exposition
Sud
Sud
Ville
Évry (91000)
Évry (91000)
Livraison
1er trimestre 2027
1er trimestre 2027
Informations
01 81 80 39 10
01 81 80 39 10
Présentation du programme "Le Domaine du Bois de la Garenne"
Le programme immobilier neuf Le Domaine du Bois de la Garenne est une opération d'envergure. Elle s'invite dans un secteur pavillonnaire très paisible à deux pas d'une forêt protégée constituant la limite communale avec Bondoufle. La configuration de ce programme RE 2020 lui permet de proposer une majorité d'intérieurs à double orientation.* Source : tram12-express.iledefrance-mobilites.fr
Autres logements T5 du programme "Le Domaine du Bois de la Garenne"
| Disponibilité | Prix | No | Genre | Pièces | Surface | Étage | Disponibilité | Prix | ||
|---|---|---|---|---|---|---|---|---|---|---|
| Voir | Disponible | MI11 | Maison | T5 | 114.85m2 | 0-RDC | Disponible | Voir | ||
| Voir | Disponible | MI12 | Maison | T5 | 114.85m2 | 0-RDC | Disponible | Voir | ||
| Voir | Disponible | MI17 | Maison | T5 | 114.85m2 | 0-RDC | Disponible | Voir | ||
| Voir | Disponible | MI48 | Maison | T5 | 112.36m2 | 0-RDC | Disponible | Voir | ||
| Voir | Disponible | MI47 | Maison | T5 | 114.19m2 | 0-RDC | Disponible | Voir | ||
| Voir | Disponible | MI22 | Maison | T5 | 112.36m2 | 0-RDC | Disponible | Voir |


