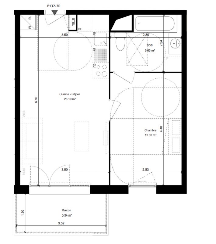
Prix
194 500€
Type
Appt. au 3ème
Pièces
T2
Surface
41.13 m²
Exposition
-
Ville
Le Coudray-Montceaux (91830)
Livraison
2ème trimestre 2028
Informations
01 81 80 39 10

Présentation du programme "La Ferme du Bois de l'Ecu"

Ce projet d'envergure prévoit la réalisation d'une résidence de trois bâtiments dont les logements, du studio au 5 pièces, sont tous dotés d'un espace extérieur (balcon, terrasse ou jardin privatif). Intégrée harmonieusement à l'architecture locale, La Ferme du Bois de l'Ecu proposera un cadre de vie privilégié autour d'un coeur d'îlot paysager.

Autres logements T2 du programme "La Ferme du Bois de l'Ecu"

Disponibilité Prix Genre Pièces Surface Étage
Voir
Disponible
196 500€ Appt. T2 42m2 3ème
Voir
Disponible
195 500€ Appt. T2 42.03m2 2ème
DO NOT CLICK