373 000€
Appt. au 5ème
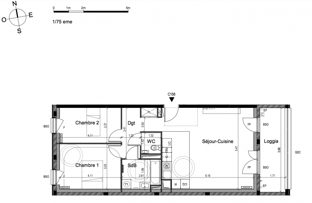
T3
68.51 m²
Ouest
Palaiseau (91120)
4ème trimestre 2026
01 81 80 39 10
Présentation du programme "EFFERVESCENCE - LE CENTRAL"
Le nouveau quartier « Le Central » réalisé par Pitch immo en copromotion avec Demathieu Bard Immobilier et Sogeprom est situé sur le plateau de Paris Saclay, reconnu comme un centre universitaire, économique et scientifique d’excellence, tout en étant proche des centres-villes de Palaiseau et Orsay, ainsi que d’un environnement paysager riche et qualitatif.
La résidence « Effervescence » propose des appartements du studio au 5 pièces et des maisons de ville en duplex avec de beaux espaces extérieurs et parkings pour tous. A quelques minutes à pied, vous disposez d’accès facilités à plusieurs lignes de bus gares RER puis à l’horizon 2026 le métro 18 à 500m. Vous bénéficierez des commerces, services ou écoles à quelques minutes à pieds ou dans un rayon de 15 minutes en voiture.
Cette résidence est idéale pour vous constituer un patrimoine immobilier de qualité. A proximité de bassins d’emplois (Thales, Danone, Sanofi, Safran…) et universitaires (CNRS, Université Paris-Saclay, Polytechnique, ENSAE, HEC, TELECOM Paris, Centrale Supelec…) le secteur à Palaiseau sera très recherchée, notamment avec la nouvelle ligne de métro 18.
Autres logements T3 du programme "EFFERVESCENCE - LE CENTRAL"
| Disponibilité | Prix | No | Genre | Pièces | Surface | Étage | Disponibilité | Prix | ||
|---|---|---|---|---|---|---|---|---|---|---|
| Voir | Disponible | 405 000€ | C101 | Appt. | T3 | 85.9m2 | 0-RDC | Disponible | 405 000€ | Voir |
| Voir | Disponible | 410 000€ | C102 | Appt. | T3 | 86.65m2 | 0-RDC | Disponible | 410 000€ | Voir |
| Voir | Disponible | 373 000€ | A104 | Appt. | T3 | 75.52m2 | 0-RDC | Disponible | 373 000€ | Voir |
| Voir | Optionné | 379 000€ | C166 | Appt. | T3 | 68.51m2 | 6ème | Optionné Mais pas encore vendu 😉 | 379 000€ | Voir |
| Voir | Disponible | 358 000€ | C163 | Appt. | T3 | 62.75m2 | 6ème | Disponible | 358 000€ | Voir |
| Voir | Disponible | 420 000€ | A103 | Appt. | T3 | 89.99m2 | 0-RDC | Disponible | 420 000€ | Voir |
| Voir | Optionné | 360 000€ | C122 | Appt. | T3 | 62.73m2 | 2ème | Optionné Mais pas encore vendu 😉 | 360 000€ | Voir |