Prix
549 000€
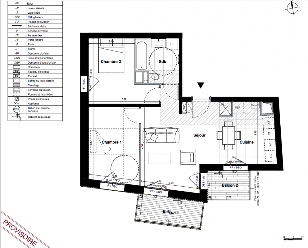
Type
Appt. au 1er
Pièces
T3
Surface
57.11 m²
Exposition
-
Ville
Sceaux (92330)
Livraison
2ème trimestre 2026
Informations
01 81 80 39 10

Présentation du programme "KOMINKA"

INTERIEUR

Porte palière 5 points avec niveau de résistance à l’effraction et cylindre de sécurité A2P
Menuiseries extérieures en aluminium double vitrage, équipées de brise-soleil orientables et motorisés
Système domotique connecté SCHNEIDER Wiser ou équivalent permettant de gérer depuis un Smartphone ou une tablette les volets, le chauffage, l’éclairage du séjour et de la chambre principale
Chauffage et production d’eau chaude sanitaire individuels

EXTERIEUR

Parkings et box en sous-sol
Balcons et terrasses végétalisés à la livraison (selon plan de vente)
Jardins privatifs

Autres logements T3 du programme "KOMINKA"

Disponibilité Prix Genre Pièces Surface Étage
Voir
Disponible
529 000€ Appt. T3 56.08m2 0-RDC
Voir
Disponible
709 000€ Appt. T3 77.93m2 0-RDC
DO NOT CLICK