Prix
949 000€
Type
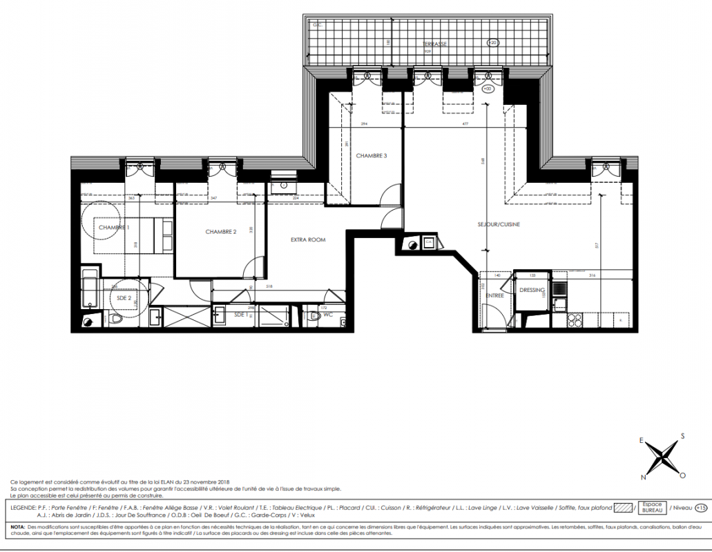
Appt. au 3ème
Pièces
T5
Surface
120.83 m²
Exposition
Est
Ville
Sèvres (92310)
Livraison
2ème trimestre 2027
Informations
01 81 80 39 10

Présentation du programme "Pavillon Mansart"

Élégance, nature et bien-être au cœur de Sèvres
Situé entre Boulogne-Billancourt et Meudon, à 15 minutes en Transilien de la gare Montparnasse, Sèvres figure parmi les communes les plus agréables à vivre du sud-ouest parisien. La grande qualité de ses écoles, commerces et équipements culturels en fait l'une des destinations privilégiées des familles, nombreuses à y rechercher un logement.Avec cette adresse prestigieuse, à proximité de la forêt de Meudon, cette nouvelle résidence offre un véritable havre de paix à quelques pas du dynamisme urbain. Que ce soit pour un investissement patrimonial ou locatif, vide ou meublé, un achat immobilier à Sèvres représente toujours une valeur sûre dans un portefeuille patrimonial.*Source : Google Maps

Autres logements T5 du programme "Pavillon Mansart"

Disponibilité Prix Genre Pièces Surface Étage
Voir
Disponible
899 000€ Appt. T5 117.62m2 3ème
DO NOT CLICK