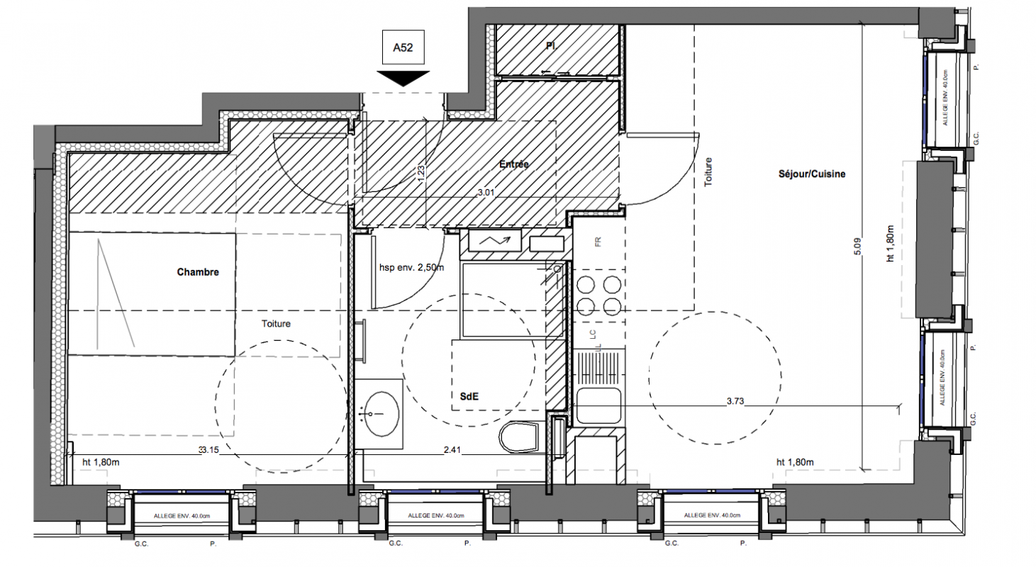
Prix
845 000€
Type
Appt. au 5ème
Pièces
T2
Surface
42.13 m²
Exposition
-
Ville
Paris 15ème (75015)
Livraison
3ème trimestre 2026
Informations
01 81 80 39 10

Présentation du programme "17 FAUBOURG"

Programme neuf Paris 15ème - 75015

Autres logements T2 du programme "17 FAUBOURG"

Pas de logements disponibles
DO NOT CLICK