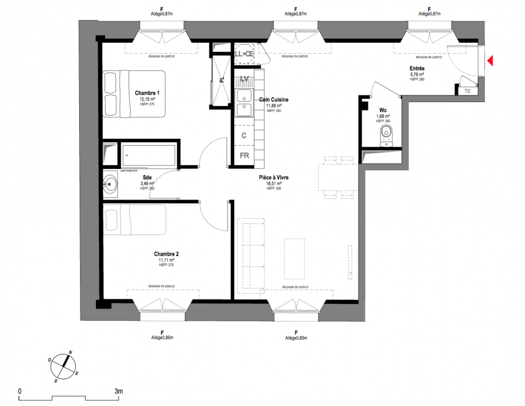
Prix
409 935€
Type
Appt. au 0-RDC
Pièces
T3
Surface
70.5 m²
Exposition
-
Ville
Fontainebleau (77300)
Livraison
2ème trimestre 2026
Informations
01 81 80 39 10

Présentation du programme "ATHENAIS"

Une région à l'économie importanteUne ville aux multiples attraitsUne situation idéaleUne résidence d'exception

Autres logements T3 du programme "ATHENAIS"

Disponibilité Prix Genre Pièces Surface Étage
Voir
Disponible
426 757€ Appt. T3 76.9m2 0-RDC
Voir
Disponible
423 416€ Appt. T3 72.5m2 0-RDC
DO NOT CLICK