Prix
421 400€  (TVA 20%)
370 481€  (TVA 5.5%)
Type
Appt. au 0-RDC
Pièces
T4
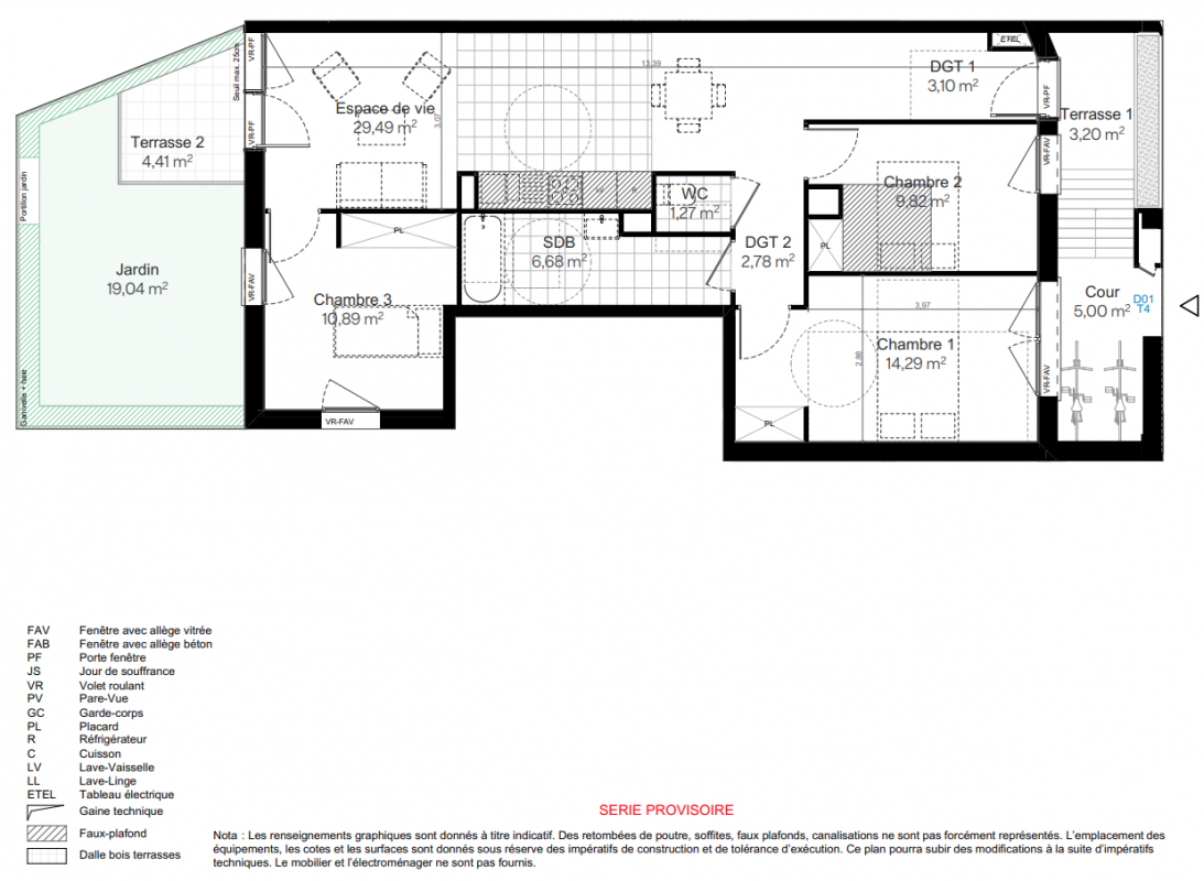
Surface
78.58 m²
Le bon plan
Exposition
-
Ville
Aubervilliers (93300)
Livraison
2ème trimestre 2028
Informations
01 81 80 39 10

Présentation du programme "Stand Up"

[NOUVEAU DISPOSITIF JEANBRUN : réduisez vos impôts et augmentez votre rentabilité !]

AU COEUR DU FORT D'AUBERVILLIERS ! Découvrez notre nouvelle résidence à AUBERVILLIERS (93) composée d'appartements du studio au 5 pièces aux prestations soignées. Vous profitez d'une adresse d'exception proche du métro, des établissements scolaires et des commerces.

Autres logements T4 du programme "Stand Up"

Disponibilité Prix Genre Pièces Surface Étage
Voir
Disponible
450 900€ Appt. T4 76.22m2 7ème
DO NOT CLICK