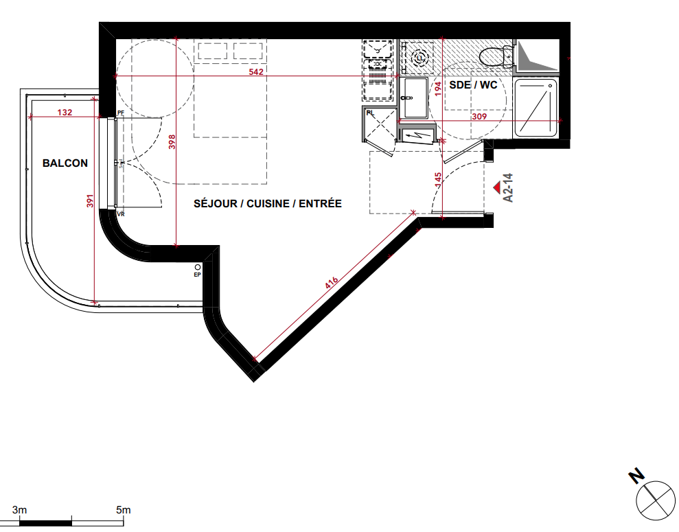
Appt. n°A2 14

Programme "Ora"
Prix
160 000€
Type
Appt. au 1er
Pièces
Studio
Surface
33.27 m²
Exposition
-
Ville
Dugny (93440)
Livraison
4ème trimestre 2028
Informations
01 81 80 39 10

Présentation du programme "Ora"

Bénéficiez d'un cadre de vie unique, connecté et pratique : à 5 min de la future ligne 17 du Grand Paris Express (Le Bourget), accès rapide à l'A1 et l'A86, commerces, écoles et services à proximité immédiate et au pied d'un parc de 417 ha, Ora s'inscrit dans la continuité du quartier des Jeux Olympiques, déjà salué pour sa réussite urbaine et paysagère.
Devenez propriétaire de votre appartement neuf, du studio au 5 pièces avec jardin, balcon, loggia ou terrasse et bénéficiez du nouveau Prêt à Taux Zéro (PTZ) pour compléter votre financement !

Autres logements Studio du programme "Ora"

Disponibilité Prix Genre Pièces Surface Étage
Voir
Disponible
185 000€ Appt. Studio 33.72m2 4ème
DO NOT CLICK