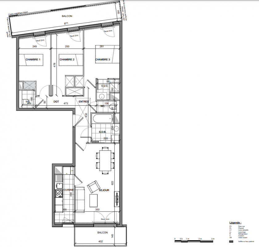
407 600€
Appt. au 0-RDC
T4
81.92 m²
-
La Courneuve (93120)
2ème trimestre 2028
01 81 80 39 10
Présentation du programme "Cour Nova"
ACHETEZ VOTRE APPARTEMENT NEUF A LA COURNEUVE
Des appartements neufs pour habiter ou investir à La Courneuve
Découvrez en avant-première la nouvelle réalisation neuve de Vianova à la Courneuve en Seine-Saint-Denis.
Voisine de Pantin, Drancy, Bobigny, Saint-Denis et Aubervilliers, et située à seulement 4.7 km* de Paris Porte de Pantin, La Courneuve profite du dynamisme économique de la capitale. Ville en pleine mutation, elle met en place de nombreuses opérations de rénovation urbaine visant à l’amélioration de ses équipements, de son habitat et du cadre de vie de ses habitants.
Traversée par les autoroutes A1 et A86, La Courneuve est par ailleurs très bien desservie par les transports en commun (RER B, métro ligne 7, et d’ici à 2031 les lignes 15 Est, 16 & 17 du Grand Paris Express**). Elle permet ainsi un accès aux Gares RER St-Lazare et Châtelet-les-Halles en moins de 30 min.* grâce au RER B.
Un programme immobilier neuf au calme et au cœur de toutes les commodités
Située au sud de la ville dans le quartier des « Quatre Routes », dans un secteur pavillonnaire calme, votre nouvelle résidence signée Vianova, offre également un accès immédiat à toutes les commodités. En moins de 5 min. à pied*, vous rejoignez les transports (métro ligne 7, tramway T1, bus), les services du quotidien, les commerces et les écoles. Prochainement (2027**), vous accéderez à la future ligne 15 Est du Grand Paris Express « Fort d’Aubervilliers » en 11 min. à pied*.
‘’Cour Nova’’ propose des appartements du studio au 5 pièces, avec cuisine et salle de bains et aménagées, tous prolongés par une belle surface extérieure***. La quasi totalité des logements dispose d’une ou de deux places de stationnement privatives pour faciliter votre quotidien.
La résidence est certifiée NF Habitat HQE et dispose de l’attestation de respect de la réglementation environnementale RE2020, gage de performance énergétique et d’une plus grande qualité de logement.
L’ensemble de l’opération est éligible à la TVA réduite à 5,5%****.
*source : Google Maps, temps indicatifs. **Source : www.grandparisexpress.fr. ***Balcon, terrasse ou jardin. ****voir renseignements et conditions sur notre site www.ca-immobilier.fr.
Promoteur national et tout particulièrement présent en Ile-de-France depuis plus de 25 ans, Vianova vous propose, en tant qu’expert de la promotion immobilière, la résidence ‘’Cour Nova’’ située à La Courneuve. N’hésitez pas à nous contacter pour votre projet de résid
Autres logements T4 du programme "Cour Nova"
| Disponibilité | Prix | No | Genre | Pièces | Surface | Étage | Disponibilité | Prix | ||
|---|---|---|---|---|---|---|---|---|---|---|
| Voir | Disponible | 402 800€ | B311 | Appt. | T4 | 82.55m2 | 0-RDC | Disponible | 402 800€ | Voir |
| Voir | Disponible | 383 200€ | B214 | Appt. | T4 | 81.92m2 | 0-RDC | Disponible | 383 200€ | Voir |
| Voir | Disponible | 432 600€ | B111 | Appt. | T4 | 89.85m2 | 0-RDC | Disponible | 432 600€ | Voir |
| Voir | Disponible | 425 900€ | B101 | Appt. | T4 | 89.09m2 | 0-RDC | Disponible | 425 900€ | Voir |
| Voir | Disponible | 441 400€ | B121 | Appt. | T4 | 89.85m2 | 0-RDC | Disponible | 441 400€ | Voir |
| Voir | Disponible | 401 600€ | B202 | Appt. | T4 | 81.96m2 | 0-RDC | Disponible | 401 600€ | Voir |
| Voir | Disponible | 411 000€ | B321 | Appt. | T4 | 82.55m2 | 0-RDC | Disponible | 411 000€ | Voir |