Ce lot n’est plus disponible chez VIANOVA ou est vendu.

Vous pouvez revenir dans 24h pour vérifier le stock à jour ou contacter un conseiller Vianova pour vérifier le stock en direct.
Vous pouvez également continuer votre recherche sur notre site « ici ».

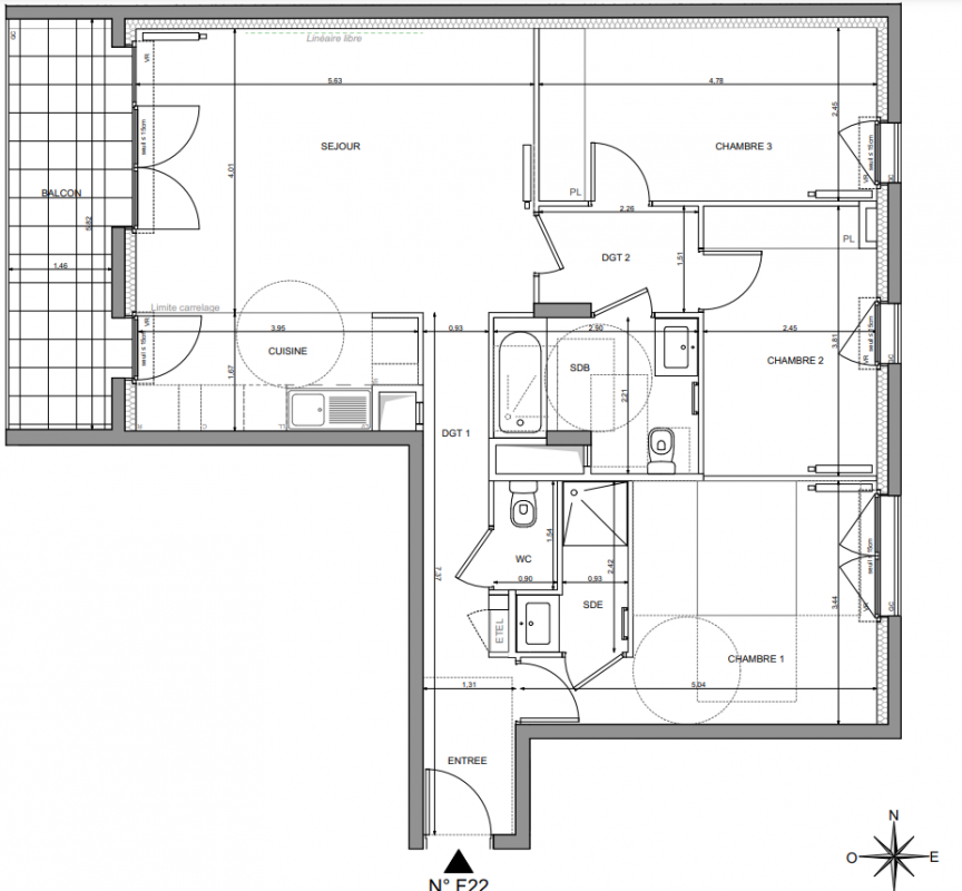
Prix
480 000€
Type
Appt. au 2ème
Pièces
T4
Surface
84.15 m²
Exposition
Ouest
Ville
Saint-Denis (93200)
Livraison
1er trimestre 2027
Informations
01 81 80 39 10

Présentation du programme "214 AVENUE DU PRESIDENT WILSON"


Carrelage au sol grands carreaux et parquet massif
Hauteur sous plafond allant de 2,60m jusqu’à 3,90m pour les duplex
Meuble vasque surmonté d’un miroir dans les salles de bains
Pare-douche et sèche-serviettes
Menuiseries extérieures en bois
Volets roulants aluminium avec commande par manivelle
Portes palières avec serrure de sureté A2P*
Appartements équipés d’un vidéophone et accessible avec digicode et Vigik®
Chauffage collectif raccordé au CPCU – le chauffage urbain

Autres logements T4 du programme "214 AVENUE DU PRESIDENT WILSON"

Disponibilité Prix Genre Pièces Surface Étage
Voir
Disponible
492 512€ Appt. T4 89.88m2 2ème
DO NOT CLICK