Prix
288 000€  (TVA 20%)
264 000€  (TVA 10%)
Type
Appt. au 4ème
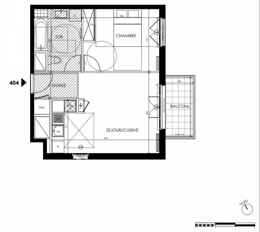
Pièces
T2
Surface
41 m²
Exposition
Est
Ville
Villemomble (93250)
Livraison
3ème trimestre 2028
Informations
01 81 80 39 10

Présentation du programme "Les Jardins de Cos"

À seulement 400 mètres de la gare RER E Villemomble-Le Raincy-Montfermeil, en plein centre-ville, dans un quartier très prisé, en limite du Raincy, découvrez 'Les Jardins de Cos', une résidence à taille humaine qui abrite, derrière ses façades soignées, un petit nombre d'appartements de standing du studio au 4 pièces. Chaque logement s'ouvre sur un espace extérieur, balcon, terrasse ou jardin privatif prolongeant ainsi les pièces de vie et invitant à savourer les plaisirs du plein air. Alliant calme résidentiel et proximité immédiate de la capitale, cette nouvelle adresse offre un cadre de vie privilégié, idéal pour habiter ou investir. Soyez parmi les premiers à choisir votre appartement ! Pour toutes informations complémentaires, prenez contact avec nous !

Autres logements T2 du programme "Les Jardins de Cos"

Disponibilité Prix Genre Pièces Surface Étage
Voir
Disponible
268 999€ Appt. T2 41m2 2ème
DO NOT CLICK