Prix
366 000€
Type
Appt. au 2ème
Pièces
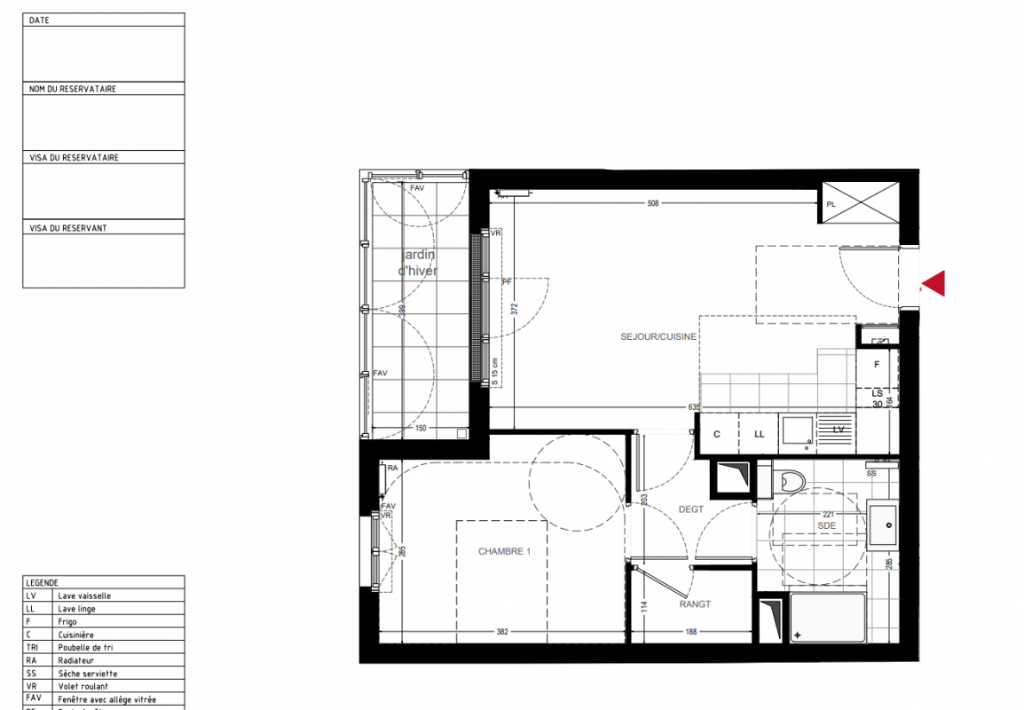
T2
Surface
47.33 m²
Exposition
Ouest
Ville
Enghien-les-Bains (95880)
Livraison
1er trimestre 2028
Informations
01 81 80 39 10

Présentation du programme "TELLEMENT ENGHIEN"

ENGHIEN-LES-BAINS (95) : PROCHAINEMENT DEMARRAGE DES TRAVAUX - A 250 mètres du lac et du casino, VINCI Immobilier vous dévoile "TELLEMENT ENGHIEN" sa nouvelle résidence aux lignes élégantes répartie sur trois bâtiments à taille humaine. Dans cet environnement prisé et de qualité, vous profiterez d’appartements aux prestations soignées, du studio aux 5 pièces prolongés par des balcons, des loggias, des terrasses, des jardins et pour quelques privilégiés de terrasses plein ciel. Votre quotidien sera facilité par la proximité des commerces du centre-ville, des services et des équipements scolaires et sportifs. Vous pourrez également flâner aux grés de vos envies sur les berges du Lac et profiter ainsi de cet environnement remarquable. Située à 13 minutes à pied de la résidence, la Gare d’Enghien-Les-Bains (Transilien H) vous permettra de rejoindre la Gare du Nord en 16 minutes. De nombreuses lignes de bus complètent la desserte. Vous profiterez pour l’acquisition de votre résidence principale du Prêt à Taux Zéro.

Autres logements T2 du programme "TELLEMENT ENGHIEN"

Disponibilité Prix Genre Pièces Surface Étage
Voir
Disponible
342 000€ Appt. T2 45.17m2 0-RDC
Voir
Disponible
389 000€ Appt. T2 51.6m2
Le bon plan
0-RDC
DO NOT CLICK