233 062€ (TVA 20%)
204 900€ (TVA 5.5%)
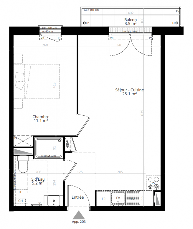
Appt. au 2ème
-
41.4 m²
-
Villeneuve-Saint-Georges (94190)
2ème trimestre 2028
01 81 80 39 10
Présentation du programme "VILLA NOVA"
VILLA NOVA - Villeneuve-Saint-Georges : Programme immobilier neuf en accession - Cible primo-accédants
Localisation et potentiel marché : Le programme VILLA NOVA est situé à Villeneuve-Saint-Georges (94), à 15 km de la porte de Bercy, dans un secteur pavillonnaire recherché, calme et verdoyant. La commune bénéficie d'une forte accessibilité vers Paris, via le RER D (station Villeneuve-Triage - Paris Gare de Lyon en moins de 25 min), la RN6 et l'A86, ainsi que d'une proximité avec l'aéroport d'Orly.
Zone à demande résidentielle soutenue, portée par les actifs franciliens et les primo-accédants recherchant des prix plus accessibles aux portes de Paris.
Description de l'opération : Résidence neuve à taille humaine de 39 logements, du 2 au 4 pièces, avec surfaces généreuses jusqu'à 80 m². Implantation entre la rue Danton et la rue Gabriel Cordier, offrant un double accès et un environnement résidentiel qualitatif, à proximité immédiate des équipements sportifs et du coeur de ville.
Programme conforme à la RE 2020, garantissant performance énergétique, charges maîtrisées et pérennité patrimoniale.
Typologies et cibles commerciales :
- 2 pièces : primo-accédants solos ou jeunes couples.
- 3 pièces : coeur de cible résidence principale.
- 4 pièces : familles primo-accédantes recherchant un premier achat durable.
Tous les logements disposent d'un balcon (jusqu'à 9 m²) et de plans optimisés avec cuisines ouvertes.
Arguments de vente clés :
- Offre neuve rare en secteur pavillonnaire.
- Forte accessibilité Paris / Orly.
- Résidence sécurisée et qualitative.
- Espaces extérieurs privatifs sur l'ensemble des logements.
- Architecture soignée, matériaux durables, image patrimoniale.
- 43 places de stationnement et local vélos.
- Équipements et prestations
- Hall d'entrée avec patio.
- Façades en pierre, lucarnes stylisées.
- Garde-corps ajourés en acier.
- Volets battants bois sur certains bâtiments.
- Jardin paysager en coeur d'îlot.
- Sécurisation complète : digicode, vidéophone, porte palière renforcée.
Contexte urbain et services :
- Commerces et services de proximité accessibles à pied.
- Écoles, collèges et lycées dans la commune.
- Marché central et équipements culturels.
- Espaces verts et berges de Seine
Autres logements - du programme "VILLA NOVA"
| Disponibilité | Prix | No | Genre | Pièces | Surface | Étage | Disponibilité | Prix | ||
|---|---|---|---|---|---|---|---|---|---|---|
| Voir | Disponible | 250 123€ | 101 | Appt. | - | 39.6m2 | 1er | Disponible | 250 123€ | Voir |
| Voir | Disponible | 281 972€ | 102 | Appt. | - | 60.5m2 | 1er | Disponible | 281 972€ | Voir |
| Voir | Optionné | 216 000€ | 103 | Appt. | - | 41.1m2 | 1er | Optionné Mais pas encore vendu 😉 | 216 000€ | Voir |
| Voir | Disponible | 218 275€ | 104 | Appt. | - | 41.4m2 | 1er | Disponible | 218 275€ | Voir |
| Voir | Disponible | 223 962€ | 106 | Appt. | - | 43m2 | 0-RDC | Disponible | 223 962€ | Voir |
| Voir | Disponible | 246 711€ | 108 | Appt. | - | 39.2m2 | 1er | Disponible | 246 711€ | Voir |
| Voir | Disponible | 261 498€ | 109 | Appt. | - | 57.4m2 | 1er | Disponible | 261 498€ | Voir |
| Voir | Disponible | 279 697€ | 201 | Appt. | - | 57.8m2 | 2ème | Disponible | 279 697€ | Voir |
| Voir | Disponible | 285 384€ | 202 | Appt. | - | 59.3m2 | 2ème | Disponible | 285 384€ | Voir |
| Voir | Disponible | 228 512€ | 204 | Appt. | - | 41.4m2 | 2ème | Disponible | 228 512€ | Voir |
| Voir | Disponible | 222 825€ | 205 | Appt. | - | 39.6m2 | 2ème | Disponible | 222 825€ | Voir |
| Voir | Disponible | 235 336€ | 206 | Appt. | - | 43m2 | 2ème | Disponible | 235 336€ | Voir |
| Voir | Disponible | 277 422€ | 207 | Appt. | - | 66.1m2 Le bon plan | 2ème | Disponible | 277 422€ | Voir |
| Voir | Disponible | 250 123€ | 208 | Appt. | - | 39.2m2 | 2ème | Disponible | 250 123€ | Voir |
| Voir | Disponible | 277 422€ | 209 | Appt. | - | 57.4m2 | 2ème | Disponible | 277 422€ | Voir |
| Voir | Disponible | 329 744€ | 210 | Appt. | - | 74.3m2 | 2ème | Disponible | 329 744€ | Voir |
| Voir | Disponible | 274 009€ | 301 | Appt. | - | 58.1m2 | 3ème | Disponible | 274 009€ | Voir |
| Voir | Disponible | 289 934€ | 302 | Appt. | - | 59.3m2 | 3ème | Disponible | 289 934€ | Voir |
| Voir | Disponible | 236 474€ | 303 | Appt. | - | 41.4m2 | 3ème | Disponible | 236 474€ | Voir |
| Voir | Disponible | 231 924€ | 304 | Appt. | - | 41.4m2 | 3ème | Disponible | 231 924€ | Voir |
| Voir | Disponible | 226 237€ | 305 | Appt. | - | 39.6m2 | 3ème | Disponible | 226 237€ | Voir |
| Voir | Disponible | 238 749€ | 306 | Appt. | - | 43m2 | 3ème | Disponible | 238 749€ | Voir |
| Voir | Disponible | 283 109€ | 307 | Appt. | - | 66.1m2 | 3ème | Disponible | 283 109€ | Voir |
| Voir | Disponible | 253 536€ | 308 | Appt. | - | 39.1m2 | 3ème | Disponible | 253 536€ | Voir |
| Voir | Disponible | 281 972€ | 309 | Appt. | - | 57.4m2 | 3ème | Disponible | 281 972€ | Voir |
| Voir | Disponible | 335 431€ | 310 | Appt. | - | 74.3m2 | 3ème | Disponible | 335 431€ | Voir |
| Voir | Disponible | 300 171€ | 402 | Appt. | - | 58.1m2 | 4ème | Disponible | 300 171€ | Voir |
| Voir | Disponible | 246 711€ | 403 | Appt. | - | 40.5m2 | 4ème | Disponible | 246 711€ | Voir |
| Voir | Disponible | 281 972€ | 405 | Appt. | - | 61.4m2 | 4ème | Disponible | 281 972€ | Voir |
| Voir | Disponible | 310 408€ | 406 v1 | Appt. | - | 72.7m2 | 4ème | Disponible | 310 408€ | Voir |
| Voir | Disponible | 294 483€ | 407 v1 | Appt. | - | 53.3m2 | 4ème | Disponible | 294 483€ | Voir |
| Voir | Disponible | 275 147€ | 408 | Appt. | - | 45.3m2 | 4ème | Disponible | 275 147€ | Voir |
| Voir | Disponible | 358 180€ | 409 | Appt. | - | 79.7m2 | 4ème | Disponible | 358 180€ | Voir |
| Voir | Disponible | 239 886€ | 404 | Appt. | - | 40.5m2 | 4ème | Disponible | 239 886€ | Voir |