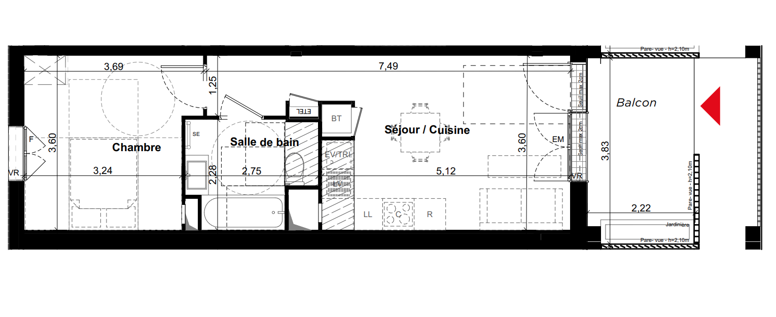
169 900€
Appt. au 1er
-
38.09 m²
-
Gargenville (78440)
2ème trimestre 2028
01 81 80 39 10
Présentation du programme "LES SARMENTS"
Vos Frais de notaire OFFERTS + REMISE de 3 000 euros par pièce pour les 5 premiers réservataires *
Découvrez « LES SARMENTS », un projet immobilier neuf pensé pour offrir un confort durable et un cadre de vie de qualité. Ce programme se distingue par son mode constructif innovant, reposant sur une construction modulaire en bois naturel intégrant la technologie Vestack, en copromotion avec ce spécialiste de la construction hors-site et bas-carbone.
Le programme se compose :
• d'appartements du 2 au 4 pièces,
• de maisons de 4 et 5 pièces.
Les logements bénéficient de plans traversants Est-Ouest, favorisant la luminosité naturelle et le confort au quotidien.
« LES SARMENTS » s'inscrit dans une démarche environnementale ambitieuse et bénéficie des labellisations suivantes :
• RE 2020 - seuil 2028,
• Label BiodiverCity,
• NF Habitat...
Le projet intègre un coeur d'îlot végétalisé et une implantation des bâtiments pensée pour maximiser l'ensoleillement et dégager des vues lointaines.
Idéalement situé, le programme prend place au coeur d'un quartier résidentiel et bénéficie d'une proximité immédiate de la gare, accessible en 5 minutes à pied facilitant les déplacements du quotidien.
Contactez-nous dès à présent pour en savoir plus.
* Offres promotionnelles valables du 01/03/2026 au 31/03/2026 inclus, dans la limite des stocks disponibles et réservées aux 5 premiers réservataires, sous réserve de la signature d'un contrat de réservation d'un logement SPIRIT. Offres non cumulables avec toute autre offre en cours ou à venir. Remise d'un montant de 3 000 € par pièce principale (pièce hors cuisine et hors salle de bains), soit 6000 € pour un T2, 9 000 € pour un T3, 12 000 € pour un T4 et 15 000 € pour un T5. Ces remises sont calculées sur la base du prix de vente TTC figurant sur la grille de prix selon le taux de TVA en vigueur et consenties dans le cadre d'un avenant au contrat de réservation. Les frais de notaire sont pris en charge par la SCI, hors frais d'hypothèque, de garantie bancaire et de règlement de copropriété.
Autres logements - du programme "LES SARMENTS"
| Disponibilité | Prix | No | Genre | Pièces | Surface | Étage | Disponibilité | Prix | ||
|---|---|---|---|---|---|---|---|---|---|---|
| Voir | Optionné | 169 900€ | B06 | Appt. | - | 38.09m2 | 0-RDC | Optionné Mais pas encore vendu 😉 | 169 900€ | Voir |
| Voir | Optionné | 169 900€ | B07 | Appt. | - | 38.09m2 | 0-RDC | Optionné Mais pas encore vendu 😉 | 169 900€ | Voir |
| Voir | Disponible | 176 900€ | B12 | Appt. | - | 36.26m2 | 1er | Disponible | 176 900€ | Voir |
| Voir | Disponible | 176 900€ | B13 | Appt. | - | 37.66m2 | 1er | Disponible | 176 900€ | Voir |
| Voir | Disponible | 169 900€ | B14 | Appt. | - | 38.09m2 | 1er | Disponible | 169 900€ | Voir |
| Voir | Disponible | 169 900€ | B15 | Appt. | - | 38.09m2 | 1er | Disponible | 169 900€ | Voir |
| Voir | Disponible | 173 900€ | A04 | Appt. | - | 38.09m2 | 0-RDC | Disponible | 173 900€ | Voir |
| Voir | Disponible | 173 900€ | A05 | Appt. | - | 38.09m2 | 0-RDC | Disponible | 173 900€ | Voir |
| Voir | Disponible | 173 900€ | A06 | Appt. | - | 38.09m2 | 0-RDC | Disponible | 173 900€ | Voir |
| Voir | Disponible | 173 900€ | A07 | Appt. | - | 38.09m2 | 0-RDC | Disponible | 173 900€ | Voir |
| Voir | Disponible | 173 900€ | B02 | Appt. | - | 36.26m2 | 0-RDC | Disponible | 173 900€ | Voir |
| Voir | Optionné | 173 900€ | B03 | Appt. | - | 37.66m2 | 0-RDC | Optionné Mais pas encore vendu 😉 | 173 900€ | Voir |
| Voir | Optionné | 173 900€ | B08 | Appt. | - | 38.16m2 | 0-RDC | Optionné Mais pas encore vendu 😉 | 173 900€ | Voir |
| Voir | Disponible | 179 900€ | B22 | Appt. | - | 36.26m2 | 2ème | Disponible | 179 900€ | Voir |
| Voir | Disponible | 179 900€ | A13 | Appt. | - | 37.66m2 | 1er | Disponible | 179 900€ | Voir |
| Voir | Disponible | 176 900€ | A14 | Appt. | - | 38.09m2 | 1er | Disponible | 176 900€ | Voir |
| Voir | Disponible | 176 900€ | A15 | Appt. | - | 38.09m2 | 1er | Disponible | 176 900€ | Voir |
| Voir | Disponible | 254 900€ | B28 duplex | Appt. | - | 67.82m2 | 2ème | Disponible | 254 900€ | Voir |
| Voir | Disponible | 169 900€ | B16 | Appt. | - | 38.09m2 | 1er | Disponible | 169 900€ | Voir |
| Voir | Disponible | 178 900€ | A02 | Appt. | - | 36.26m2 | 0-RDC | Disponible | 178 900€ | Voir |
| Voir | Disponible | 178 900€ | A03 | Appt. | - | 37.66m2 | 0-RDC | Disponible | 178 900€ | Voir |
| Voir | Disponible | 178 900€ | A08 | Appt. | - | 38.16m2 | 0-RDC | Disponible | 178 900€ | Voir |
| Voir | Disponible | 176 900€ | B18 | Appt. | - | 38.16m2 | 1er | Disponible | 176 900€ | Voir |
| Voir | Disponible | 179 900€ | A12 | Appt. | - | 36.26m2 | 1er | Disponible | 179 900€ | Voir |
| Voir | Optionné | 179 900€ | A22 | Appt. | - | 36.26m2 | 2ème | Optionné Mais pas encore vendu 😉 | 179 900€ | Voir |
| Voir | Disponible | 176 900€ | A16 | Appt. | - | 38.09m2 | 1er | Disponible | 176 900€ | Voir |
| Voir | Disponible | 179 900€ | A18 | Appt. | - | 38.16m2 | 1er | Disponible | 179 900€ | Voir |
| Voir | Disponible | 312 900€ | B21 | Appt. | - | 78.82m2 | 2ème | Disponible | 312 900€ | Voir |
| Voir | Disponible | 249 900€ | B25 duplex | Appt. | - | 68.72m2 | 2ème | Disponible | 249 900€ | Voir |
| Voir | Disponible | 254 900€ | B23 duplex | Appt. | - | 67.84m2 | 2ème | Disponible | 254 900€ | Voir |
| Voir | Disponible | 249 900€ | A27 duplex | Appt. | - | 68.72m2 | 2ème | Disponible | 249 900€ | Voir |
| Voir | Optionné | 259 900€ | A23 duplex | Appt. | - | 67.84m2 | 2ème | Optionné Mais pas encore vendu 😉 | 259 900€ | Voir |
| Voir | Disponible | 249 900€ | A26 duplex | Appt. | - | 68.72m2 | 2ème | Disponible | 249 900€ | Voir |
| Voir | Disponible | 249 900€ | B26 duplex | Appt. | - | 68.72m2 | 2ème | Disponible | 249 900€ | Voir |
| Voir | Disponible | 244 900€ | B24 duplex | Appt. | - | 68.72m2 Le bon plan | 2ème | Disponible | 244 900€ | Voir |
| Voir | Disponible | 249 900€ | A24 duplex | Appt. | - | 68.72m2 | 2ème | Disponible | 249 900€ | Voir |
| Voir | Optionné | 249 900€ | A25 duplex | Appt. | - | 68.72m2 | 2ème | Optionné Mais pas encore vendu 😉 | 249 900€ | Voir |
| Voir | Disponible | 302 900€ | B01 | Appt. | - | 78.82m2 | 0-RDC | Disponible | 302 900€ | Voir |
| Voir | Optionné | 308 900€ | B11 | Appt. | - | 78.82m2 | 1er | Optionné Mais pas encore vendu 😉 | 308 900€ | Voir |
| Voir | Disponible | 309 900€ | A01 | Appt. | - | 78.82m2 | 0-RDC | Disponible | 309 900€ | Voir |
| Voir | Disponible | 249 900€ | B27 duplex | Appt. | - | 68.72m2 | 2ème | Disponible | 249 900€ | Voir |
| Voir | Disponible | 315 900€ | A11 | Appt. | - | 78.82m2 | 1er | Disponible | 315 900€ | Voir |
| Voir | Disponible | 319 900€ | A21 | Appt. | - | 78.82m2 | 2ème | Disponible | 319 900€ | Voir |
| Voir | Disponible | 349 900€ | M05 | Appt. | - | 82.24m2 | 0-RDC | Disponible | 349 900€ | Voir |
| Voir | Optionné | 359 900€ | M06 | Appt. | - | 82.24m2 | 0-RDC | Optionné Mais pas encore vendu 😉 | 359 900€ | Voir |
| Voir | Optionné | 359 900€ | M07 | Appt. | - | 82.24m2 | 0-RDC | Optionné Mais pas encore vendu 😉 | 359 900€ | Voir |
| Voir | Optionné | 359 900€ | M08 | Appt. | - | 82.24m2 | 0-RDC | Optionné Mais pas encore vendu 😉 | 359 900€ | Voir |
| Voir | Disponible | 379 900€ | M04 | Appt. | - | 93.84m2 | 0-RDC | Disponible | 379 900€ | Voir |
| Voir | Disponible | 176 900€ | A17 | Appt. | - | 38.09m2 | 1er | Disponible | 176 900€ | Voir |