Prix
335 000€
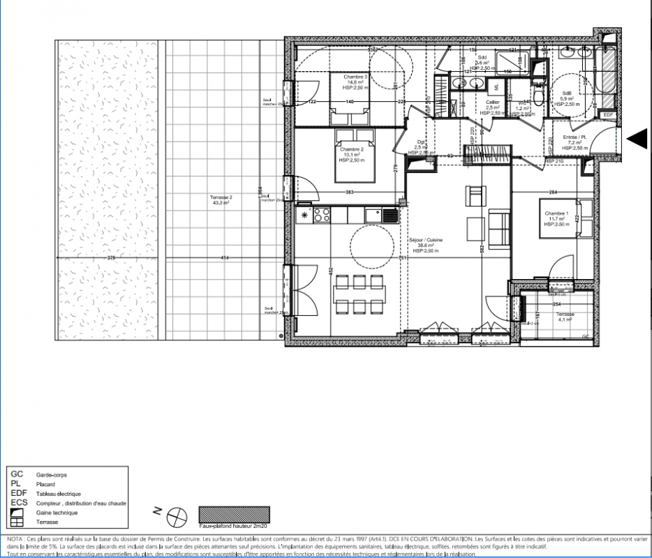
Type
Appt. au 0-RDC
Pièces
T4
Surface
97.9 m²
Exposition
Ouest
Ville
Déville-lès-Rouen (76250)
Livraison
4ème trimestre 2027
Informations
01 81 80 39 10

Présentation du programme " L'Orée des Docks "

Située dans une vallée, DEVILLE LES ROUEN est traversée par Le Cailly, rivière qui a rythmé le développement de la ville. Au delà de l'histoire autour de son industrie tournée vers le textile, la commune est aujourd'hui un havre de paix pour ses habitants, où la convivialité règle et où chacun trouve sa place dans une communauté chaleureuse et accueillante. L'Orée des Docks se situe aux portes de ROUEN, à l'entrée de la commune de DEVILLE LES ROUEN. La résidence propose un accès rapide aux grands axes routiers et à la ligne de TEOR 2 avec sa voie dédiée, dont l'arrêt est à quelques mètres. Ce projet immobilier se compose de 55 appartements entre 39 et 100 m² avec des espaces extérieurs (terrasses, balcons, loggias) répartis sur 3 bâtiments avec des places de parking couvertes.

Autres logements T4 du programme " L'Orée des Docks "

Disponibilité Prix Genre Pièces Surface Étage
Voir
Disponible
309 000€ Appt. T4 88.5m2 2ème
Voir
Disponible
335 000€ Appt. T4 98m2 4ème
DO NOT CLICK