Prix
235 900€
Type
Appt. au 0-RDC
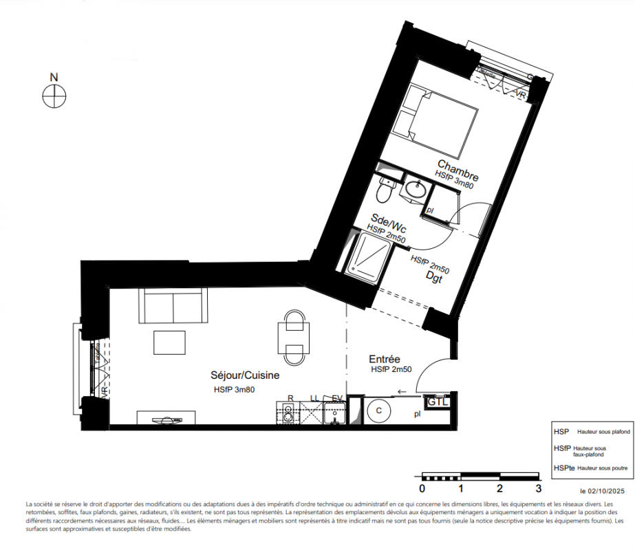
Pièces
T2
Surface
46.06 m²
Exposition
-
Ville
Périgueux (24000)
Livraison
4ème trimestre 2027
Informations
01 81 80 39 10

Présentation du programme "LA RESERVE"

Située sur la place du Président Roosevelt, La Réserve est née de la restauration de l’ancienne Banque de France, édifice emblématique de la ville, construit en 1878 puis agrandi en 1925.
L’immeuble conserve un style architectural à la fois néoclassique et inspiré de l’architecture bancaire de l’époque. Pensé autrefois pour incarner solidité et sécurité, attributs essentiels d’une institution financière, il se réinvente aujourd’hui en une résidence d’exception, composée de 43 appartements du T1 au T3 duplex, répartis sur 3 étages.
La façade conserve l’inscription “Banque de France”, symbole immuable de l’histoire du bâtiment. Sa symétrie parfaite et sa rigueur géométrique reflètent l’esprit néoclassique. Construite en pierre, enrichie de décors sculptés et de ferronneries, elle affirme la robustesse et le caractère solennel de l’édifice.
Le projet respecte la morphologie du bâtiment en y intégrant des interventions sobres et adaptées. Les anciennes salles des coffres et archives, en rez-de-jardin, se transforment en cours anglaises ou celliers, tandis que d’autres, conservées en l’état, perpétuent le témoignage de la vocation originelle des lieux.
Le hall d’entrée, vaste et imposant, a été préservé dans toute sa splendeur. Ses mosaïques, sa verrière centrale et sa hauteur sous plafond en font un lieu de passage grandiose et baigné de lumière.

Autres logements T2 du programme "LA RESERVE"

Disponibilité Prix Genre Pièces Surface Étage
Voir
Optionné
189 900€ Appt. T2 35.05m2 3ème
DO NOT CLICK