Ce lot n’est plus disponible chez VIANOVA ou est vendu.

Vous pouvez revenir dans 24h pour vérifier le stock à jour ou contacter un conseiller Vianova pour vérifier le stock en direct.
Vous pouvez également continuer votre recherche sur notre site « ici ».

451 060€
735 940€
- €
Type
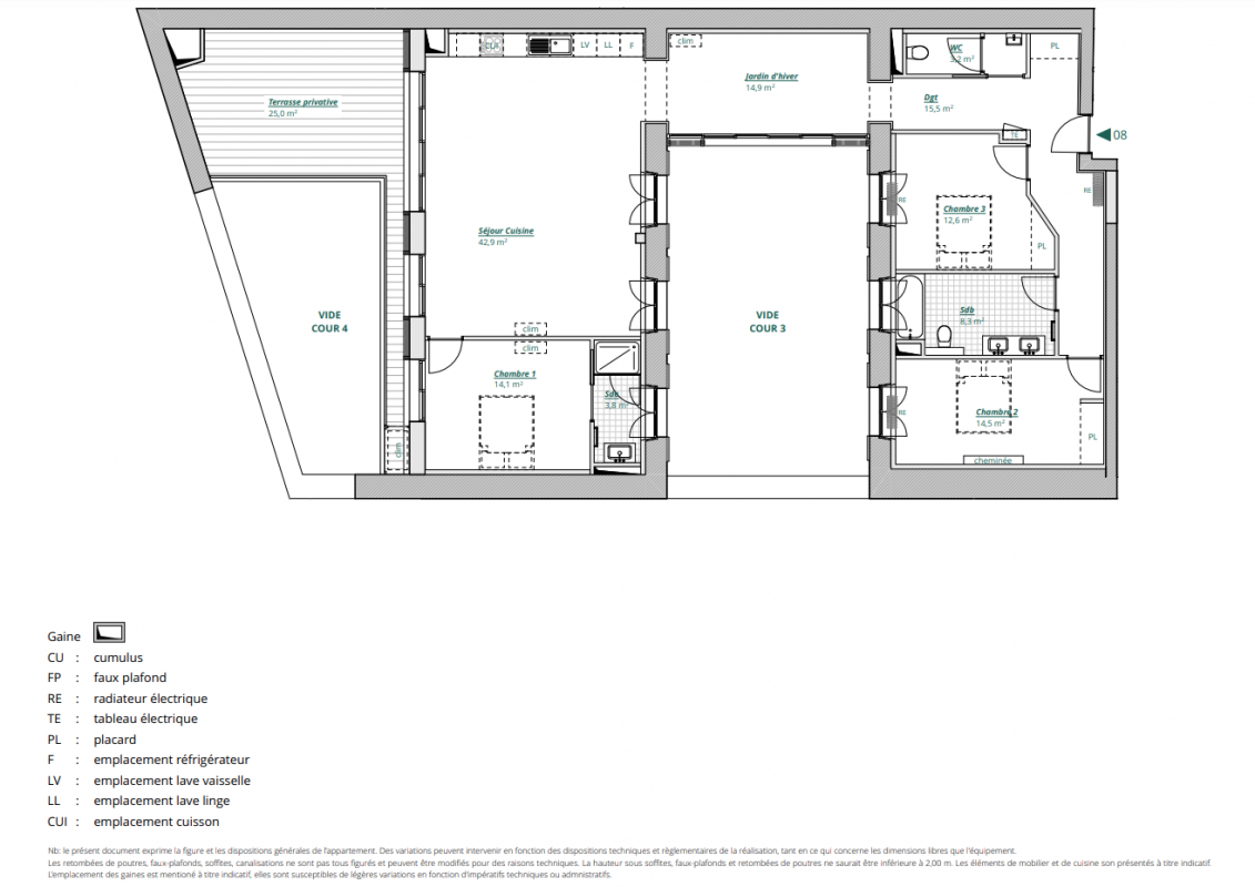
Appt. au 3ème
Pièces
T4
Surface
128.7 m²
Exposition
-
Ville
Bordeaux (33000)
Livraison
4ème trimestre 2025
Informations
01 81 80 39 10

Présentation du programme "LE PHOENIX"

Programme neuf Bordeaux - 33000

Autres logements T4 du programme "LE PHOENIX"

Disponibilité Prix Genre Pièces Surface Étage
Voir
Archivé
1 258 220€ Appt. T4 128.8m2 2ème
DO NOT CLICK