356 500€ (TVA 20%)
313 423€ (TVA 5.5%)
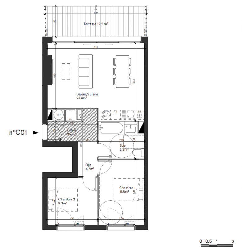
Appt. au 0-RDC
T3
61.1 m²
Nord-Est
Bordeaux (33000)
3ème trimestre 2027
01 81 80 39 10
Présentation du programme "Programme neuf Bordeaux (33000)"
TRAVAUX EN COURS AUX CHARTRONS ! Achetez votre appartement neuf à BORDEAUX avec extérieur et parking au sein du quartier des Chartrons !Découvrez notre nouvelle résidence, Programme neuf Bordeaux (33000), bénéficiant d'un emplacement exceptionnel, entre esprit bohème et animation des Bassins à Flots.Réputé pour son charme historique avec notamment sa place des Quinconces, sa pittoresque rue Notre-Dame, son patrimoine artistique aux restaurations remarquables telles que la place du Marché des Chartrons ou bien les Halles Bacalan, sans compter sur sa surprenante Cité du Vin et son emblématique parc Jardin Public ; le quartier des Chartrons incarne l'essence même de Bordeaux.Notre nouvelle adresse se situe tout proche des crèches et établissements scolaires réputés, des commerces de bouche et restaurants tendances, des marchés locaux et du reste des services essentiels, garantissant une vie quotidienne douce et paisible. Côté déplacements, vous bénéficiez d'un accès facile aux transports en commun. Plusieurs arrêts de bus et de tramway se trouvent à proximité, vous permettant de vous déplacer aisément dans toute la ville. Enfin, la gare de Bordeaux-Saint-Jean est accessible en quelques minutes via les transports en commun.Composée de petits bâtiments de seulement 2 ou 3 étages à la manière des échoppes Bordelaises, Programme neuf Bordeaux (33000) offre une atmosphère privilégiée, chaleureuse et intimiste. Les appartements, déclinés du 2 au 5 pièces dont quelques duplex, sont conçus pour répondre à toutes vos attentes. Chaque logement bénéficie d'un espace extérieur privé, que ce soit d'un balcon ou d'une terrasse spacieuse, vous permettant de profiter de moments de détente dès les premiers beaux jours. Les espaces intérieurs sont pensés pour garantir confort et fonctionnalité, avec une attention particulière apportée aux détails. Tous les bâtiments sont dotés d'une toiture végétalisée, contribuant ainsi à l'efficacité énergétique de l'ensemble. Enfin, notre nouvelle adresse se distingue par son cœur d'îlot paysager, un espace naturel préservé en plein cœur de la ville, propice à la détente, aux promenades et à la convivialité.La résidence dispose de places de parking en sous-sol, assurant ainsi praticité et sécurité à l'ensemble des résidents. De plus, deux locaux vélo sont mis à disposition, encourageant les modes de déplacements doux. Contactez dès maintenant un de nos conseillers pour concrétiser votre projet immo
Autres logements T3 du programme "Programme neuf Bordeaux (33000)"
| Disponibilité | Prix | No | Genre | Pièces | Surface | Étage | Disponibilité | Prix | ||
|---|---|---|---|---|---|---|---|---|---|---|
| Voir | Disponible | 512 000€ | H02 | Appt. | T3 | 70.8m2 | 0-RDC | Disponible | 512 000€ | Voir |
| Voir | Disponible | 520 000€ | H102 | Appt. | T3 | 70.9m2 | 1er | Disponible | 520 000€ | Voir |
| Voir | Disponible | 373 800€ | B02 | Appt. | T3 | 66.6m2 | 0-RDC | Disponible | 373 800€ | Voir |
| Voir | Disponible | 373 800€ | C02 | Appt. | T3 | 66.6m2 | 0-RDC | Disponible | 373 800€ | Voir |