Prix
255 500€
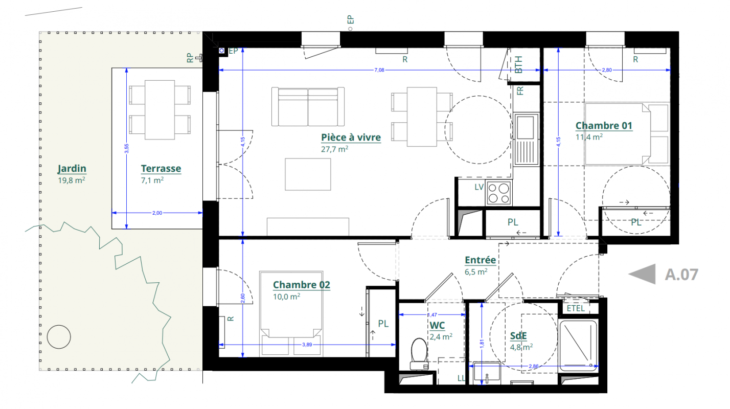
Type
Appt. au 0-RDC
Pièces
T3
Surface
62.8 m²
Le bon plan
Exposition
-
Ville
Léognan (33850)
Livraison
2ème trimestre 2026
Informations
01 81 80 39 10

Présentation du programme "DOMAINE BELLEVUE"

LES PRESTATIONS CONFORT ET MODERNITE


Une place de parking numérotée par appartement
Local à vélos sécurisé
Peinture lisse sur les murs
Revêtement de sol isophonique PVC écoresponsable finition parquet ou béton
Menuiseries extérieures en PVC blanc
Sèche serviettes électriques dans les salles de bain
Jardins et loggias pour les appartements en rez-de-chaussée
Loggias pour les appartements à l’étage

Autres logements T3 du programme "DOMAINE BELLEVUE"

Disponibilité Prix Genre Pièces Surface Étage
Voir
Disponible
276 000€ Appt. T3 61.5m2 0-RDC
Voir
Disponible
269 000€ Appt. T3 61.5m2 1er
Voir
Disponible
262 000€ Appt. T3 61.5m2 1er
DO NOT CLICK