Prix
188 999€
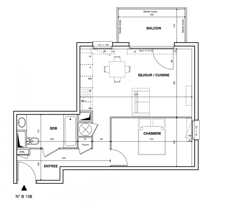
Type
Appt. au 1er
Pièces
T2
Surface
42.91 m²
Exposition
-
Ville
Marcheprime (33380)
Livraison
2ème trimestre 2027
Informations
01 81 80 39 10

Présentation du programme "La Husta"

Autres logements T2 du programme "La Husta"

Disponibilité Prix Genre Pièces Surface Étage
Voir
Disponible
186 999€ Appt. T2 41.37m2 2ème
Voir
Disponible
182 000€ Appt. T2 41.37m2 1er
DO NOT CLICK