Prix
570 000€
570 000€
Type
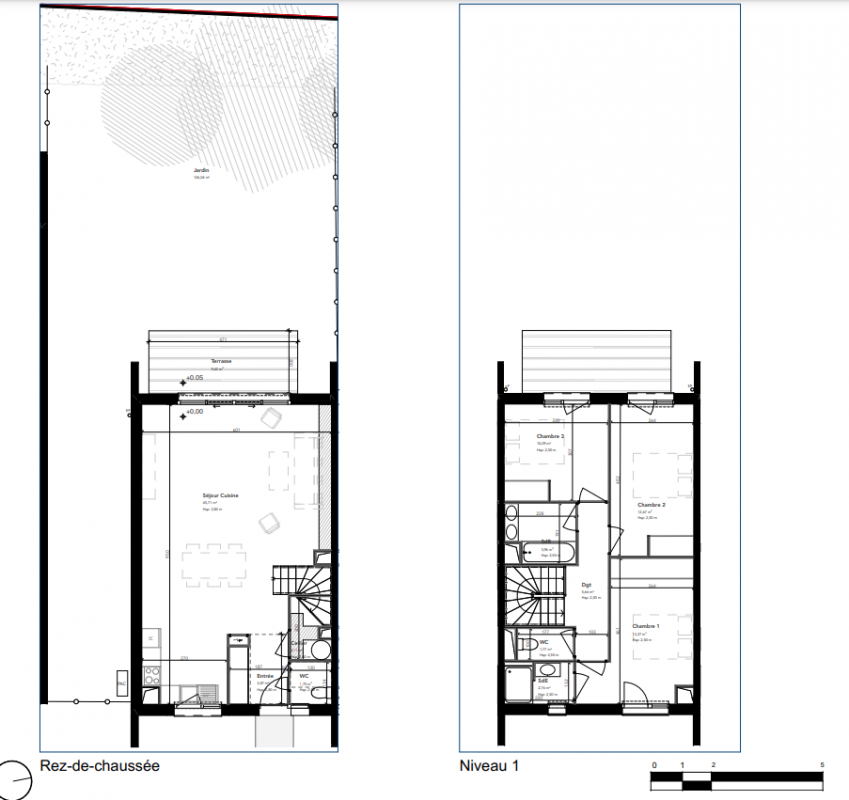
Maison au 0-RDC
Maison au 0-RDC
Pièces
T4
T4
Surface
103.81 m²
103.81 m²
Le bon plan
Exposition
-
-
Ville
Mérignac (33700)
Mérignac (33700)
Livraison
4ème trimestre 2026
4ème trimestre 2026
Informations
01 81 80 39 10
01 81 80 39 10
Présentation du programme "MAGNOLIA"
Parquet pour les pièces sèches
Carrelage grand format pour les pièces humides
Bac à douche extra plat et WC suspendus
Double hauteur pour un séjour cathédrale dans les maisons
PAC air/air pour les maisons
Volets roulants électriques
Jusqu’à 100m² de terrasse pour les appartements
Jusqu’à 600m² de jardin pour les maisons