327 000€
Appt. au 1er
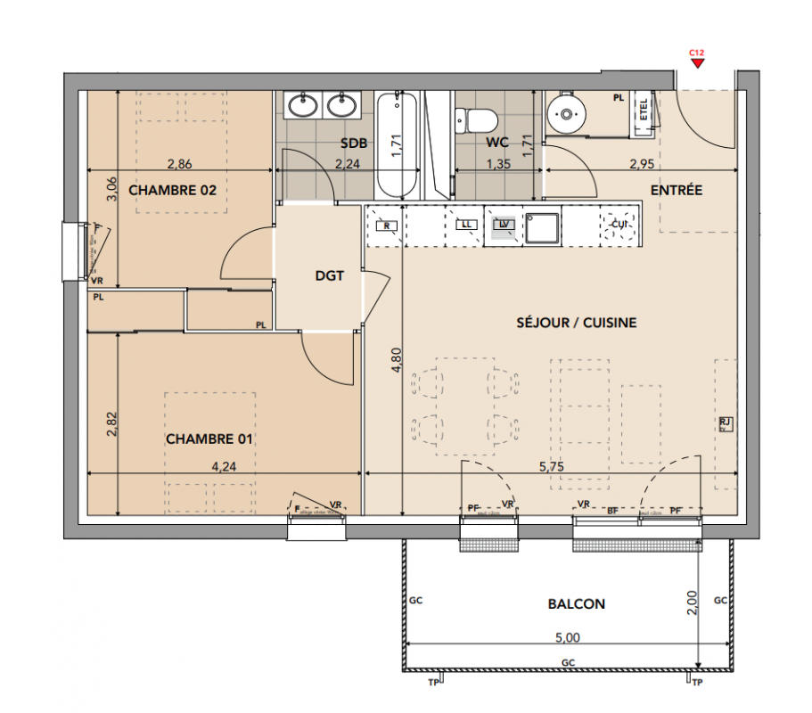
T3
63.55 m²
Sud
Pessac (33600)
1er trimestre 2027
01 81 80 39 10
Présentation du programme "LE CLOS SEMILLON"
LE PRINTEMPS DE L'IMMO : JUSQU'A 8 000 € DE REMISE + FRAIS DE NOTAIRE OFFERTS !*Rendez-vous sur place, dans notre espace de vente 106 avenue de Noës sur rendez-vous pour parlez de votre projet ! LES TRAVAUX SE POURSUIVENT – LIVRAISON début d’année 2027 ! Envie d’investir ? Cette résidence est éligible au nouveau dispositif d’investissement locatif JEANBRUN, pour constituer un patrimoine, réduire vos impôts et préparer votre retraite !
Derniers appartements 3 pièces de 58 à 65 m² avec balcon ou jardin privatif jusqu'à 132 m² - pièce de vie lumineuse entre 23 et 32 m² - 1 ou deux places de stationnement - 2 chambres avec rangements - 1 salle de bains équipée - Belles prestations : pièces de vie lumineuse grâce à la double orientation des logements, sol stratifié, carrelage 45x45 dans les pièces d'eau pour votre confort.
Dernières maisons individuelles neuves en duplex de 3 chambres de 84 ou 88 m² - jardin (jusqu'à 90 m²) et terrasse de 18 m² - grande pièce de vie d'environ 35 m² donnant sur le jardin - 3 chambres à l'étage avec 1 placard pour chacune - 2 salles de bains équipées - 1 espace de rangement / buanderie / rangement vélos de 7 à 13 m² - garage fermé et sécurisé. Belles prestations : pompe à chaleur, parquet contrecollé et volets roulants électriques carrelage 60x60 dans les pièces d'eau, salles de bain toute équipée avec faïence toute hauteur (voir détails). La résidence intimiste et sécurisée Le Clos Sémillon, de 29 logements s’inscrit dans un environnement agréable, calme et connecté, à deux pas des commodités, des établissements scolaires, et des infrastructures de transport, tout en restant à proximité de la vie urbaine bordelaise.
Vous êtes primo-accédant ? Ce programme est éligible au Prêt à Taux Zéro (PTZ), une aide précieuse pour financer une partie de votre achat immobilier neuf sans intérêts, sous conditions de ressources et d’éligibilité.
*Frais de notaire offerts + Remise de 1 000€ TTC par pièce principale soit 6 000€ pour un T3 et 8 000€ pour un T4. Offre valable pour les 5 p
Autres logements T3 du programme "LE CLOS SEMILLON"
| Disponibilité | Prix | No | Genre | Pièces | Surface | Étage | Disponibilité | Prix | ||
|---|---|---|---|---|---|---|---|---|---|---|
| Voir | Disponible | 337 000€ | A01 | Appt. | T3 | 65.63m2 | 0-RDC | Disponible | 337 000€ | Voir |
| Voir | Disponible | 299 000€ | A13 | Appt. | T3 | 58.11m2 | 1er | Disponible | 299 000€ | Voir |
| Voir | Disponible | 335 000€ | B01 | Appt. | T3 | 64.36m2 | 0-RDC | Disponible | 335 000€ | Voir |
| Voir | Disponible | 322 000€ | C01 | Appt. | T3 | 56m2 | 0-RDC | Disponible | 322 000€ | Voir |
| Voir | Optionné | 352 000€ | C02 | Appt. | T3 | 63.95m2 | 0-RDC | Optionné Mais pas encore vendu 😉 | 352 000€ | Voir |