216 240€
Appt. au 3ème
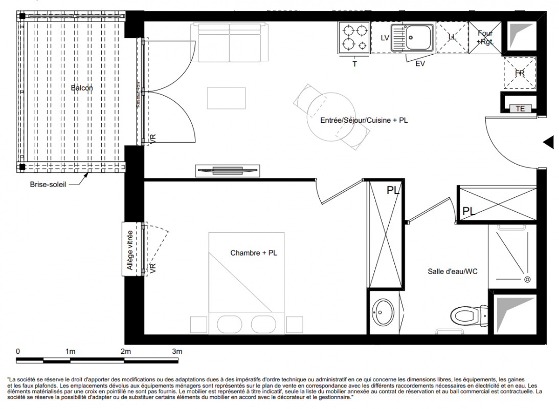
T2
40.3 m²
Ouest
Saint-Vincent-de-Tyrosse (40230)
4ème trimestre 2027
01 81 80 39 10
Présentation du programme "VILLA SERENLY SAINT VINCENT DE TYROSSE"
Villa Serenly Saint-Vincent-de-Tyrosse est composée de 50 appartements T1 et T2, répartis dans 2 bâtiments en R+3.
Idéalement située en coeur de ville, cette résidence à taille humaine offre un cadre intimiste, raffiné et chaleureux.
Chaque logement dispose d’aménagements adaptés pour garantir le confort et l’autonomie. Ils disposent tous d’une cuisine équipée et aménagée avec de nombreux rangements bas, d’une salle d’eau et des WC ergonomiques (barre de maintien, siège de douche, meuble amovible…), de prises de courant à 1m10, de volets roulants électriques dans chaque pièce et d’un espace extérieur : terrasse ou balcon..
Pour garantir l’animation, le lien social et la convivialité au sein de la résidence, plusieurs espaces communs sont mis à disposition des résidents comme un espace détente, une cuisine participative, un espace bibliothèque, une salle de fitness, un espace bien-être….
Des espaces communs extérieurs aménagés et végétalisés sont aussi proposés aux résidents pour les inviter à des moments de détente. En effet, ils peuvent se retrouver autour du boulodrome, des bacs potagers ou encore sur la terrasse commune.
Autres logements T2 du programme "VILLA SERENLY SAINT VINCENT DE TYROSSE"
| Disponibilité | Prix | No | Genre | Pièces | Surface | Étage | Disponibilité | Prix | ||
|---|---|---|---|---|---|---|---|---|---|---|
| Voir | Disponible | 213 360€ | A1.08 | Appt. | T2 | 38.46m2 | 1er | Disponible | 213 360€ | Voir |
| Voir | Disponible | 217 920€ | A2.03 | Appt. | T2 | 40.97m2 | 2ème | Disponible | 217 920€ | Voir |
| Voir | Optionné | 205 320€ | A2.08 | Appt. | T2 | 38.46m2 | 2ème | Optionné Mais pas encore vendu 😉 | 205 320€ | Voir |
| Voir | Disponible | 216 240€ | A3.02 | Appt. | T2 | 40.3m2 | 3ème | Disponible | 216 240€ | Voir |
| Voir | Disponible | 208 800€ | A3.07 | Appt. | T2 | 39m2 | 3ème | Disponible | 208 800€ | Voir |
| Voir | Optionné | 207 360€ | A3.08 | Appt. | T2 | 38.46m2 | 3ème | Optionné Mais pas encore vendu 😉 | 207 360€ | Voir |
| Voir | Optionné | 207 360€ | B2.07 | Appt. | T2 | 39m2 | 2ème | Optionné Mais pas encore vendu 😉 | 207 360€ | Voir |