Prix
254 900€
Type
Appt. au 1er
Pièces
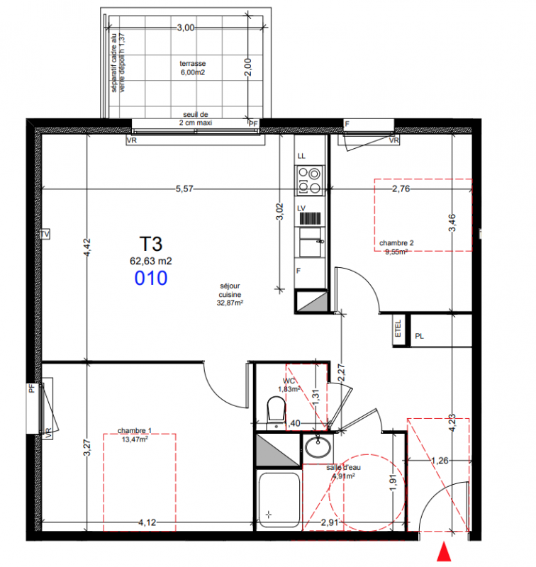
T3
Surface
0 m²
Exposition
-
Ville
Agde (34300)
Livraison
2ème trimestre 2025
Informations
01 81 80 39 10

Présentation du programme "ONYX"

Tous les appartements sont ouverts sur un espace extérieur confortable et à l'abri des regards, jardin privatif pour les logements situés au rez-de-chaussée ou terrasse généreuse pour ceux situés à l'étage. Implantée en forme de U, la résidence s'ouvre en son coeur sur un bel espace paysager aménagé avec de multiples essences pour créer une atmosphère bucolique. Frênes à fleurs, tilleuls, érables de Montpellier... apportent aussi une ombre bienfaitrice quand le soleil est au zénith. Le living-room de votre appartement prend une nouvelle dimension dès les premiers rayons de soleil printaniers. À la nuit tombée, c'est un tout autre paysage qui s'offre à votre regard.

Autres logements T3 du programme "ONYX"

Disponibilité Prix Genre Pièces Surface Étage
Voir
Disponible
249 000€ Appt. T3 0m2 0-RDC
DO NOT CLICK