188 000€
Appt. au 1er
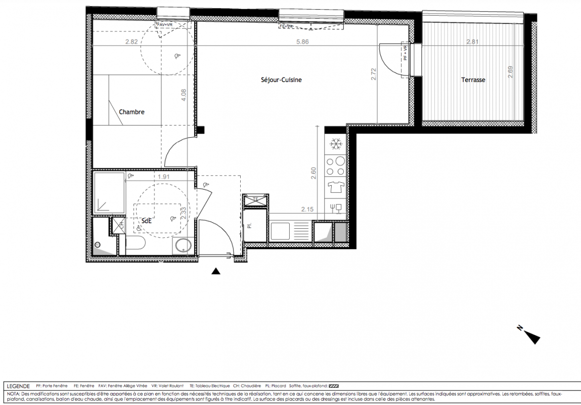
T2
46.6 m²
Nord-Est
Pontchâteau (44160)
-
01 81 80 39 10
Présentation du programme "Le Loriot"
Située en plein centre-ville de Pontchâteau, la résidence Le Loriot propose un cadre de vie pratique et intimement lié au dynamisme local.Composée de 25 appartements, du 2 au 4 pièces, répartis dans deux immeubles en miroir sur trois niveaux, elle s’intègre dans un quartier vivant, avec commerces en pied d’immeuble et un accès direct aux services essentiels.Chaque logement dispose d’un espace extérieur généreux (loggia, balcon ou terrasse), prolongeant les pièces de vie vers un environnement paysager soigné. L’architecture mêle matériaux nobles, teintes naturelles, parements pierre, bardages bois et larges ouvertures.Cadre de vie exceptionnel aux portes du Parc naturel régional de Brière, dans une commune dynamique et convivialeRésidence intimement intégrée au centre-ville : commerces, services, marché et équipements culturels accessibles directement à piedEspaces extérieurs généreux : loggias, balcons ou terrasses jusqu’à plus de 50 m²Architecture soignée : matériaux nobles, teintes naturelles, parements pierre, bardage boisStationnements aériens au sein d’un environnement paysager calme et qualitatifLocal vélos sécurisé, idéal pour les déplacements douxAppartements lumineux, agencements optimisés et performances énergétiques conformes RE2020AppartementsEspaces de vie fonctionnels et lumineux, largement ouverts vers l’extérieurOrganisation intérieure fluide avec séjour convivial et cuisine ouverteIsolation performante répondant à la réglementation RE2020Chaleur douce et consommation optimisée grâce à une meilleure perméabilité à l’airDouble vitrage pour l’ensemble des ouverturesAccès sécurisés, halls soignés avec boîtes aux lettres intégrées, ascenseur et visiophoneEspaces extérieurs / RésidencePaysagisme qualitatif : massifs végétalisés, arbres, cheminements apaisésStationnements intégrés dans un cadre paysagerLocal vélos sécurisé et facilement accessibleMatériaux extérieurs nobles : parements pierre, enduits colorés, bardage bois en faux claire‑voie, loggias aux teintes naturellesÀ proximité de la résidence (à pied)Supermarché : 50 mPromenade du Brivet : 200 mThéâtre & médiathèque : 280 mBoulangerie : 350 mEnsemble scolaire Le Quéral : 400 mGare SNCF et axes routiers : 500 mParc du Coët-Roz : 1,4 kmTemps d'accès (en voiture)Nantes : 35 minSaint‑Nazaire : 35 minVannes : 50 minRennes : 1h30
Autres logements T2 du programme "Le Loriot"
| Disponibilité | Prix | No | Genre | Pièces | Surface | Étage | Disponibilité | Prix | ||
|---|---|---|---|---|---|---|---|---|---|---|
| Voir | Disponible | 172 000€ | A202 | Appt. | T2 | 41.55m2 | 2ème | Disponible | 172 000€ | Voir |
| Voir | Disponible | 189 000€ | A205 | Appt. | T2 | 46.6m2 | 2ème | Disponible | 189 000€ | Voir |
| Voir | Optionné | 208 000€ | A301 | Appt. | T2 | 48.1m2 | 3ème | Optionné Mais pas encore vendu 😉 | 208 000€ | Voir |
| Voir | Optionné | 200 000€ | A302 | Appt. | T2 | 47.05m2 | 3ème | Optionné Mais pas encore vendu 😉 | 200 000€ | Voir |
| Voir | Optionné | 208 000€ | A303 | Appt. | T2 | 49.4m2 | 3ème | Optionné Mais pas encore vendu 😉 | 208 000€ | Voir |
| Voir | Disponible | 183 000€ | B203 | Appt. | T2 | 45.18m2 | 2ème | Disponible | 183 000€ | Voir |
| Voir | Disponible | 214 000€ | B301 | Appt. | T2 | 49.8m2 | 3ème | Disponible | 214 000€ | Voir |
| Voir | Disponible | 187 000€ | B302 | Appt. | T2 | 43.15m2 | 3ème | Disponible | 187 000€ | Voir |