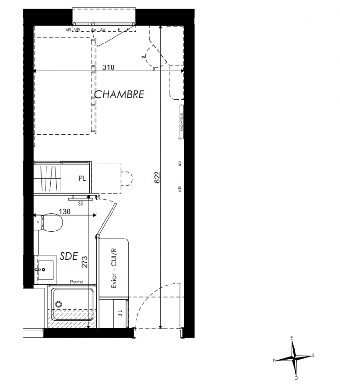
145 421€
Appt. au 6ème
Studio
18.4 m²
-
Avrillé (49240)
3ème trimestre 2027
01 81 80 39 10
Présentation du programme "Studio 142"
Une résidence étudiante idéale, au coeur du campus d'Angers
Investir dans une résidence étudiante à Angers constitue une
opportunité rare, alliant qualité de vie exceptionnelle et rentabilité durable.
Classée première ville de France pour sa qualité de vie et reconnue comme la
plus verte du pays, Angers séduit par son environnement privilégié, à seulement
35 minutes de Nantes et 1h30 de Paris en TGV.Cette résidence à taille humaine, idéalement située à 20
minutes du centre-ville en tramway ou à vélo, elle propose des appartements
neufs parfaitement desservis par les nouvelles lignes B et C du tramway, mises
en service en 2023. Le développement ambitieux des projets urbains, notamment
l’aménagement des quais et l’extension du réseau de transports, renforce encore
l’attractivité de la métropole et accompagne sa dynamique économique.Cet investissement offre également de solides avantages
financiers et fiscaux : récupération de la TVA (20 %), loyers garantis pendant
9 ans via un bail commercial sécurisé, fiscalité optimisée grâce à
l’amortissement du bien et réduction significative de l’imposition sur les
revenus locatifs. La gestion locative est intégralement confiée à un
professionnel, garantissant sérénité et rentabilité.Entièrement gérés par Néoresid filiale du Groupe Kaufman et
Broad, ils constituent un placement exemplaire sans contrainte locative. * Source : Google Maps
Autres logements Studio du programme "Studio 142"
| Disponibilité | Prix | No | Genre | Pièces | Surface | Étage | Disponibilité | Prix | ||
|---|---|---|---|---|---|---|---|---|---|---|
| Voir | Disponible | 125 305€ | B111 | Appt. | Studio | 18.32m2 | 1er | Disponible | 125 305€ | Voir |
| Voir | Disponible | 125 305€ | B112 | Appt. | Studio | 18.32m2 | 1er | Disponible | 125 305€ | Voir |
| Voir | Disponible | 127 864€ | B211 | Appt. | Studio | 18.32m2 | 2ème | Disponible | 127 864€ | Voir |
| Voir | Disponible | 129 316€ | B117 | Appt. | Studio | 18.94m2 | 1er | Disponible | 129 316€ | Voir |
| Voir | Disponible | 129 379€ | B319 | Appt. | Studio | 18.19m2 | 3ème | Disponible | 129 379€ | Voir |
| Voir | Disponible | 130 042€ | B420 | Appt. | Studio | 17.72m2 | 4ème | Disponible | 130 042€ | Voir |
| Voir | Disponible | 130 421€ | B204 | Appt. | Studio | 18m2 | 2ème | Disponible | 130 421€ | Voir |
| Voir | Disponible | 130 736€ | B216 | Appt. | Studio | 18.72m2 | 2ème | Disponible | 130 736€ | Voir |
| Voir | Disponible | 131 905€ | B419 | Appt. | Studio | 18.19m2 | 4ème | Disponible | 131 905€ | Voir |
| Voir | Disponible | 131 936€ | B207 | Appt. | Studio | 18.28m2 | 2ème | Disponible | 131 936€ | Voir |
| Voir | Disponible | 131 936€ | B213 | Appt. | Studio | 18.75m2 | 2ème | Disponible | 131 936€ | Voir |
| Voir | Disponible | 133 453€ | B109 | Appt. | Studio | 18.81m2 | 1er | Disponible | 133 453€ | Voir |
| Voir | Disponible | 134 558€ | B317 | Appt. | Studio | 18.94m2 | 3ème | Disponible | 134 558€ | Voir |
| Voir | Disponible | 135 474€ | B512 | Appt. | Studio | 18.32m2 | 5ème | Disponible | 135 474€ | Voir |
| Voir | Disponible | 135 600€ | B404 | Appt. | Studio | 18m2 | 4ème | Disponible | 135 600€ | Voir |
| Voir | Disponible | 135 947€ | B416 | Appt. | Studio | 18.72m2 | 4ème | Disponible | 135 947€ | Voir |
| Voir | Disponible | 136 136€ | B209 | Appt. | Studio | 18.81m2 | 2ème | Disponible | 136 136€ | Voir |
| Voir | Disponible | 137 179€ | B402 | Appt. | Studio | 18.32m2 | 4ème | Disponible | 137 179€ | Voir |
| Voir | Disponible | 137 400€ | B325 | Appt. | Studio | 18.52m2 | 3ème | Disponible | 137 400€ | Voir |
| Voir | Disponible | 137 400€ | B322 | Appt. | Studio | 18.4m2 | 3ème | Disponible | 137 400€ | Voir |
| Voir | Disponible | 139 769€ | B513 | Appt. | Studio | 18.75m2 | 5ème | Disponible | 139 769€ | Voir |
| Voir | Disponible | 140 084€ | B425 | Appt. | Studio | 18.52m2 | 4ème | Disponible | 140 084€ | Voir |
| Voir | Disponible | 141 536€ | B406 | Appt. | Studio | 18.75m2 | 4ème | Disponible | 141 536€ | Voir |
| Voir | Disponible | 142 736€ | B524 | Appt. | Studio | 18.4m2 | 5ème | Disponible | 142 736€ | Voir |
| Voir | Disponible | 145 421€ | B615 | Appt. | Studio | 18.4m2 | 6ème | Disponible | 145 421€ | Voir |
| Voir | Disponible | 146 936€ | B603 | Appt. | Studio | 18.94m2 | 6ème | Disponible | 146 936€ | Voir |
| Voir | Disponible | 157 453€ | B607 | Appt. | Studio | 22.51m2 | 6ème | Disponible | 157 453€ | Voir |
| Voir | Disponible | 165 884€ | B605 | Appt. | Studio | 24.84m2 | 6ème | Disponible | 165 884€ | Voir |