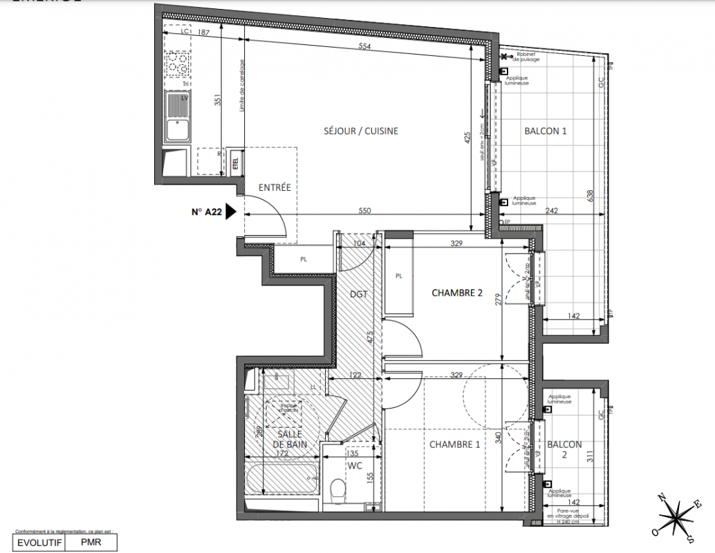
Prix
775 000€
Type
Appt. au 2ème
Pièces
T3
Surface
64.45 m²
Exposition
-
Ville
Beausoleil (06240)
Livraison
3ème trimestre 2027
Informations
01 81 80 39 10

Présentation du programme "16 LANGEVIN"


Volets roulants motorisés
Garde-corps ferronnés
Halls et paliers d’étages décorés par un architecte d’intérieur
Parkings sécurisés en sous-sol
Locaux à vélos
Portes palières munies d’une serrure A2P**
Vidéophone et contrôle d’accès par Vigik 
Chape isophonique
Parquet contrecollé dans les séjours et les chambres
Climatisation réversible gainable
Carrelage au sol et faïence toute hauteur au pourtour des baignoires et des douches
Meuble vasque surmonté d’un miroir éclairé dans les salles de bains et salles d’eau
Sèche-serviettes et pare-douche
Placards aménagés
Menuiseries extérieures en aluminium laqué

Autres logements T3 du programme "16 LANGEVIN"

Disponibilité Prix Genre Pièces Surface Étage
Voir
Disponible
690 000€ Appt. T3 59.11m2 2ème
DO NOT CLICK