Prix
320 700€
Type
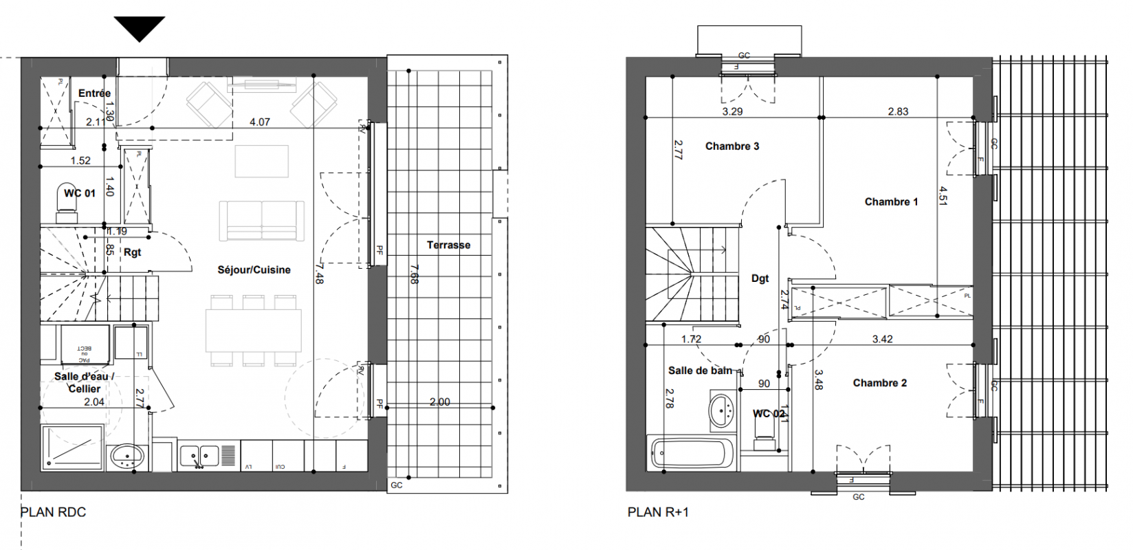
Maison au 0-RDC
Pièces
T4
Surface
83.2 m²
Exposition
Sud
Ville
Avignon (84000)
Livraison
4ème trimestre 2027
Informations
01 81 80 39 10

Présentation du programme "Programme neuf Avignon (84000)"

NOUVELLE RESIDENCE à AVIGNON ! Soyez parmi les premiers à choisir votre maison ou votre appartement neuf avec espace extérieur et parking ! Situé dans le quartier prisé de Montfavet, notre programme propose seulement 50 logements, du 2 au 4 pièces, dont 4 maisons individuelles, offrant une diversité de configurations adaptées à tous les styles de vie. Chaque logement bénéficie d'un espace extérieur privatif : terrasse, balcon ou jardin en rez-de-chaussée, idéal pour prolonger l'espace de vie et profiter pleinement du climat avignonnais. Côté prestations, les places de stationnement, situées en sous-bassement, apportent une précieuse praticité au quotidien. Inspirée de l'architecture traditionnelle provençale, la résidence affiche un style classique et chaleureux, avec ses toitures à deux pans, ses teintes douces, et une intégration harmonieuse dans un environnement verdoyant grâce à sa coulée verte. Le quartier de Montfavet, reconnu pour son ambiance résidentielle et paisible, offre une excellente accessibilité grâce au réseau de bus et à la proximité avec la gare de Montfavet, accessible en 11 min à pied*, facilitant ainsi bien les déplacements quotidiens que les liaisons régionales et nationales. La résidence est également proche du centre-ville à pied, bénéficie d'un accès rapide à l'ensemble des commerces de proximité, établissements scolaires, services et infrastructures utiles au quotidien. Parfaitement connectée et dotée d'un fort rayonnement culturel, Avignon séduit également par son dynamisme économique, avec l'implantation croissante d'entreprises innovantes, notamment dans le secteur de la tech. Le quartier de Montfavet combine un cadre de vie agréable, une verdure omniprésente et une proximité directe avec les principaux bassins d'emploi. Contactez dès maintenant un de nos conseillers pour découvrir tous nos maisons et appartements neufs à AVIGNON et être parmi les premiers à choisir le logement neuf de vos rêves !

Autres logements T4 du programme "Programme neuf Avignon (84000)"

Disponibilité Prix Genre Pièces Surface Étage
Voir
Disponible
326 400€ Maison T4 83.2m2 0-RDC
Voir
Disponible
323 600€ Maison T4 82.5m2 0-RDC
DO NOT CLICK