742 520€
1 211 480€
- €
1 211 480€
- €
Type
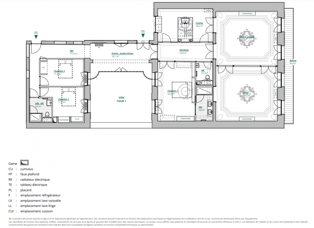
Appt. au 2ème
Appt. au 2ème
Pièces
T5
T5
Surface
184.1 m²
184.1 m²
Exposition
-
-
Ville
Bordeaux (33000)
Bordeaux (33000)
Livraison
4ème trimestre 2025
4ème trimestre 2025
Informations
01 81 80 39 10
01 81 80 39 10
Présentation du programme "LE PHOENIX"
Programme neuf Bordeaux - 33000
Autres logements T5 du programme "LE PHOENIX"
| Disponibilité | Prix | No | Genre | Pièces | Surface | Étage | Disponibilité | Prix | ||
|---|---|---|---|---|---|---|---|---|---|---|
| Voir | Disponible | 1 937 680€ | 7 | Appt. | T5 | 184m2 | 3ème | Disponible | 1 937 680€ Prix foncier 694 640€ Prix travaux 1 133 360€ | Voir |
| Voir | Disponible | 1 467 040€ | 11 | Appt. | T5 | 149.8m2 | 4ème | Disponible | 1 467 040€ Prix foncier 525 920€ Prix travaux 858 080€ | Voir |