694 640€
1 133 360€
- €
1 133 360€
- €
Type
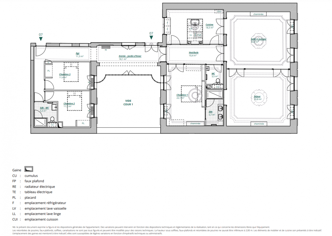
Appt. au 3ème
Appt. au 3ème
Pièces
T5
T5
Surface
184 m²
184 m²
Exposition
-
-
Ville
Bordeaux (33000)
Bordeaux (33000)
Livraison
4ème trimestre 2025
4ème trimestre 2025
Informations
01 81 80 39 10
01 81 80 39 10
Présentation du programme "LE PHOENIX"
Programme neuf Bordeaux - 33000
Autres logements T5 du programme "LE PHOENIX"
| Disponibilité | Prix | No | Genre | Pièces | Surface | Étage | Disponibilité | Prix | ||
|---|---|---|---|---|---|---|---|---|---|---|
| Voir | Disponible | 2 071 240€ | 5 | Appt. | T5 | 184.1m2 | 2ème | Disponible | 2 071 240€ Prix foncier 742 520€ Prix travaux 1 211 480€ | Voir |
| Voir | Disponible | 1 467 040€ | 11 | Appt. | T5 | 149.8m2 | 4ème | Disponible | 1 467 040€ Prix foncier 525 920€ Prix travaux 858 080€ | Voir |