66 728€
183 186€
- €
Type
Appt. au 2ème
Pièces
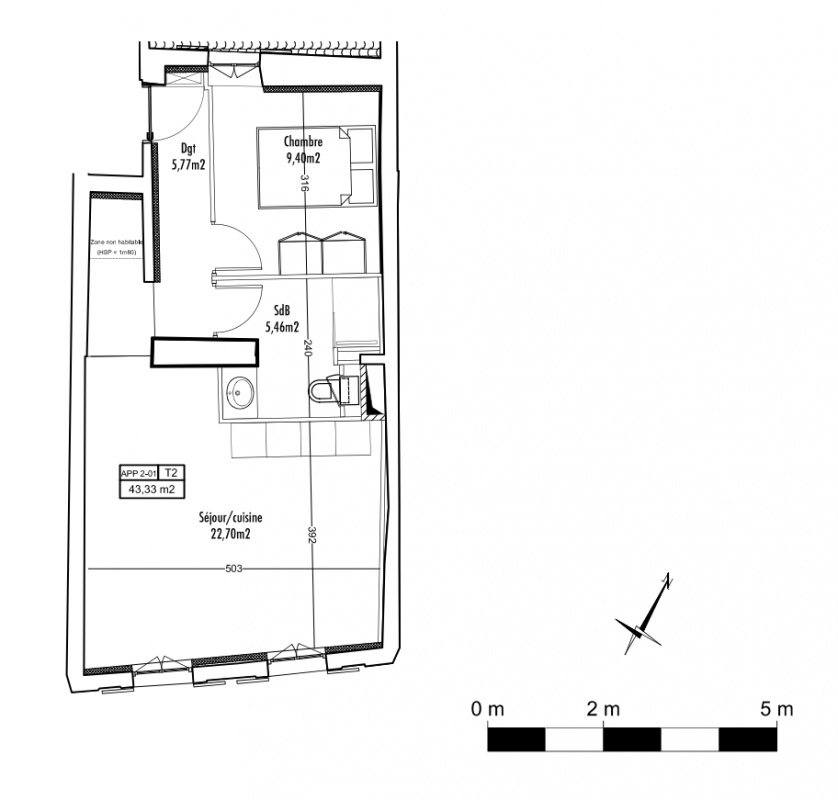
T2
Surface
43.33 m²
Exposition
-
Ville
Uzès (30700)
Livraison
1er trimestre 2027
Informations
01 81 80 39 10

Présentation du programme "Le 26, boulevard Gambetta"

UZES - LE PREMIER DUCHE DE FRANCE

Uzès se trouve à environ 24 km au nord de Nîmes. Elle abrite 40 bâtiments historiques qui ont fait d’elle une ville d’art et d’histoire. Lors d’une balade, les visiteurs pourront admirer la beauté architecturale des châteaux d’Uzès, de la cathédrale Saint-Théodorit ou encore de l’Hôtel de Ville.
À une dizaine de kilomètres un peu plus au sud se trouve la commune de Vers-Pont-du-Gard, où se trouve le célèbre Pont du Gard. Son ancienneté, son architecture d’exception lui ont valu une place sur la liste du patrimoine mondial de l’UNESCO

Le 26, boulevard Gambetta - L’IMMEUBLE

Situé au cœur du centre-ville, et à proximité de sites touristiques tels que le Château Ducal d'Uzès et le Jardin Médiéval, l'immeuble se compose actuellement de 5 appartements et d'un commerce au rez-de-chaussée. Le projet prévoit la restauration du bâtiment et l'aménagement de 6 logements allant du T1 au T2 et des surfaces de 23 m² à 46.20 m².
Les parties communes ainsi que l'intérieur des logements seront complètement rénovés après plus d'une trentaine d'années sans intervention.
L'accès se fait sur la façade principale, qui se situe sur le côté Nord du boulevard Gambetta, offrant ainsi un fort taux d'ensoleillement et une vue dégagée sur des arbres d'alignement.
L'ensemble immobilier est constitué de deux bâtiments d'époques distinctes s'articulant de part et d'autre d'un vide central qui fut jadis une cour intérieure et qui est aujourd'hui fermée en rez-de-chaussée.

Visualisez les vidéos du projet juste ici : Vidéo ]]>

Autres logements T2 du programme "Le 26, boulevard Gambetta"

Pas de logements disponibles
DO NOT CLICK